Nyelv:
Kezdd el!
Eladó
Kiadó
Tulajdonos vagyok
Ingatlanos vagyok
Zoomlla-funkciók
Eladó lakás Hévíz 108m2
8380 Hévíz
ID: 62856
84.9 M Ft (786 E Ft/m2)
Terület
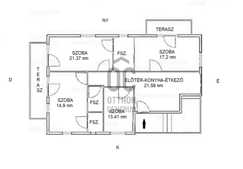
108 m2
Hálószobák
4
Ingatlan adatok
Típus: Lakás
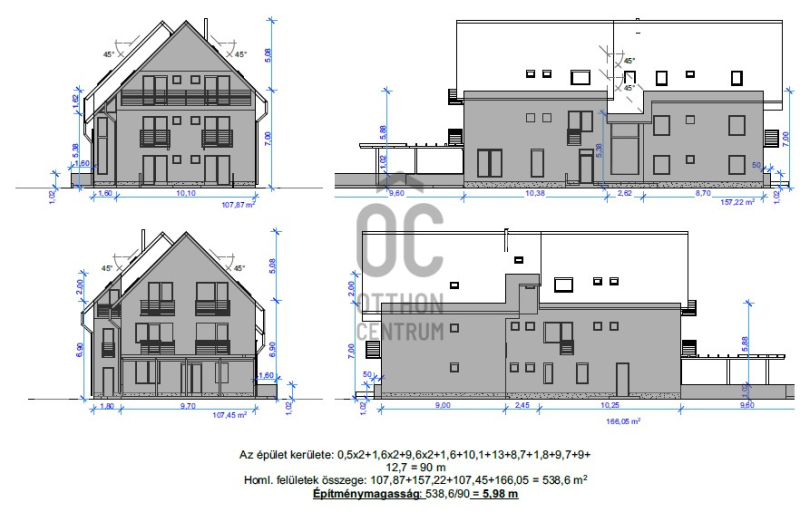
Terület: 108 m2
Hálószobák: 4
Építés éve: Max. 5 éve
Ár: 84 900 000 Ft
Ár/m2: 786 E Ft/m2
Emelet: 1+ emelet
Kilátás az ingatlanból: Park
Leírás
HÉVÍZEN TÓFÜRDŐ KÖZELÉBEN ÚJ ÉPÍTÉSŰ APARTMAN ELADÓ!

Hazai elismert beruházótól magas színvonalú gépészeti, műszaki kivitelezés.
- Új építésű,
- 6 lakásos társasház,
- Házközponti fűtés, egyedi méréssel,
- Földszinti, kertkapcsolatos,( gáz működtetésű )
- A lakásban nics gáz,
- 108 nm + 10 nm terasz,
- Minden szobához saját fürdőszoba és kis kony
...
+ Tovább olvasom
Lokáció
8380 Hévíz