Nyelv:
Kezdd el!
Eladó
Kiadó
Tulajdonos vagyok
Ingatlanos vagyok
Zoomlla-funkciók
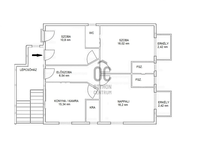
Eladó lakás Hévíz 78m2
8380 Hévíz
ID: 62855
62.9 M Ft (806 E Ft/m2)
Terület
78 m2
Hálószobák
3
Ingatlan adatok
Típus: Lakás
Terület: 78 m2
Hálószobák: 3
Építés éve: Max. 5 éve
Ár: 62 900 000 Ft
Ár/m2: 806 E Ft/m2
Emelet: Felső szint
Kilátás az ingatlanból: Park
Leírás
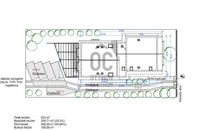
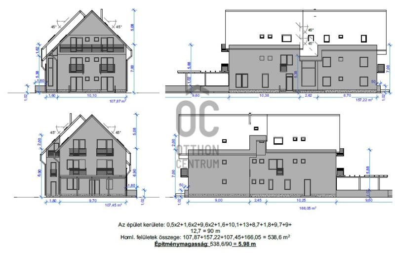
HÉVÍZEN TÓFÜRDŐ KÖZELÉBEN ÚJ ÉPÍTÉSŰ APARTMAN ELADÓ!

Hazai elismert beruházótól magas színvonalú gépészeti, műszaki kivitelezés.
- Új építésű,
- 6 lakásos társasház,
- Házközponti fűtés, egyedi méréssel, ( gáz működtetésű )
- A lakásban nics gáz,
- 78 nm +5 nm terasz,
- Minden szobához saját fürdőszoba és kis konyhai rész tartozik, így lehetővé vá
...
+ Tovább olvasom
Jellemzők
  • Erkély
Lokáció
8380 Hévíz