Nyelv:
Kezdd el!
Eladó
Kiadó
Tulajdonos vagyok
Ingatlanos vagyok
Zoomlla-funkciók
Eladó lakás Budapest IV. Újpest 103m2
1045 Budapest
ID: 62836
62.9 M Ft (611 E Ft/m2)
Terület
103 m2
Hálószobák
5
Ingatlan adatok
Típus: Lakás
Terület: 103 m2
Hálószobák: 5
Építés éve: 20+ éve
Ár: 62 900 000 Ft
Ár/m2: 611 E Ft/m2
Emelet: 1+ emelet
Kilátás az ingatlanból: Park
Leírás
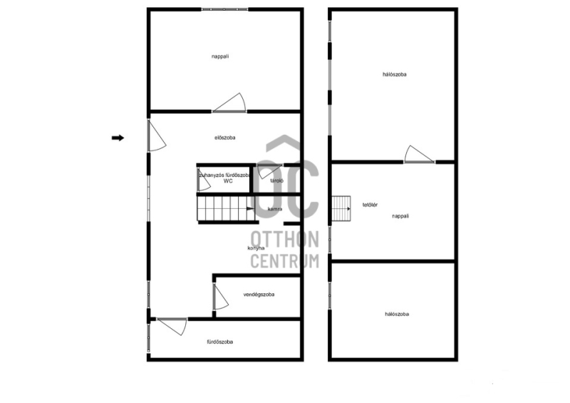
Eladó IV. Újpesten 5 lakásos társasházban, csendes utcában egy 108 m2-es (bruttó 130 m2) belső kétszintes, 5 szobás lakás.
Az ingatlan tulajdoni lap alapján 69 m2, de a tetőtér beépítésével a lakás hasznos alapterület 108 nm-re bővült. A lakás délkeleti tájolású, világos, az ablakok a kert felé néznek. Kivéve a nappali ablaka, ami a kis forgalmú ut
...
+ Tovább olvasom
Lokáció
1045 Budapest