Nyelv:
Kezdd el!
Eladó
Kiadó
Tulajdonos vagyok
Ingatlanos vagyok
Zoomlla-funkciók
Eladó lakás Budapest VII. 77m2
1074 Budapest
ID: 62810
94.3 M Ft (1.2 M Ft/m2)
Terület
77 m2
Hálószobák
3
Ingatlan adatok
Típus: Lakás
Terület: 77 m2
Hálószobák: 3
Építés éve: Max. 5 éve
Ár: 94 300 000 Ft
Ár/m2: 1.2 M Ft/m2
Emelet: Felső szint
Kilátás az ingatlanból: Belső udvar
Leírás
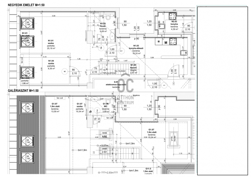
VII. New York Kávéházhoz közel, liftes társasház legfelső 4. emeletén új építésű belső kétszintes lakás eladó.

-nettó 77,3nm, bruttó 110,5nm.
-alsó szint: 1 nappali, 1 háló, fürdőszoba +Wc, konyha étkezővel,
-emelet: 1 hálószoba, 1 mosdó, gardrób helyiség.

- Igényes kivitelezés,
- hűtő-fűtő klíma,
- csendes, világos
- belső udvari nézet


A köze
...
+ Tovább olvasom
Lokáció
1074 Budapest