Nyelv:
Kezdd el!
Eladó
Kiadó
Tulajdonos vagyok
Ingatlanos vagyok
Zoomlla-funkciók
Eladó ház Budapest XI. Madárhegy 14..
1112 Budapest
ID: 62791
225 M Ft (674 E Ft/m2)
Terület
334 m2
Hálószobák
4
Ingatlan adatok
Típus: Ház
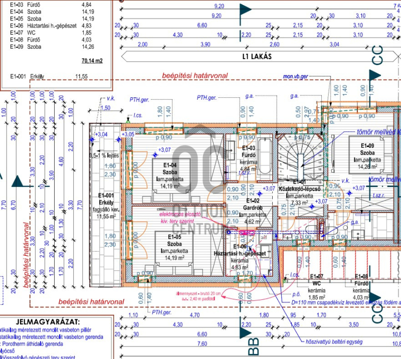
Terület: 146 m2
Erkély / Terasz területe: 375 m2
Hálószobák: 4
Építés éve: Max. 5 éve
Ár: 225 000 000 Ft
Ár/m2: 674 E Ft/m2
Emelet: 1+ emelet
Leírás
Lakjon új, modern otthonban, XI. kerület egyik legkedveltebb részén (MADÁRHEGY) - 2 szintes, 4 szobás ikerház ELADÓ!

Foglalja le időben LEENDŐ OTTHONÁT!

Madárhegy csendes, egyik zsákutcájában, most épülő, nettó 146 m2-es Hőszivattyúval szerelt kétszintes ikerházfél, garázzsal (kötelezően vásárolandó), saját használatú telekrésszel!
Kettő különál
...
+ Tovább olvasom
Lokáció
1112 Budapest