Nyelv:
Kezdd el!
Eladó
Kiadó
Tulajdonos vagyok
Ingatlanos vagyok
Zoomlla-funkciók
Eladó ház Zsámbék 880m2
2072 Zsámbék
ID: 62730
65 M Ft (74 E Ft/m2)
Terület
880 m2
Hálószobák
0
Ingatlan adatok
Típus:
Terület: 880 m2
Hálószobák: 0
Építés éve: 20+ éve
Ár: 65 000 000 Ft
Ár/m2: 74 E Ft/m2
Emelet: Felső szint
Leírás
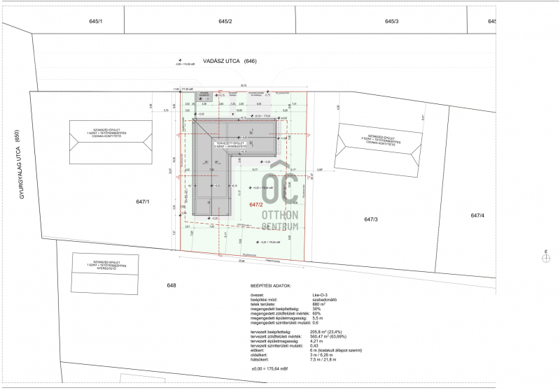
Budapesttől alig fél óra autóútra, Zsámbék csendes utcájában, építési telek, kész tervekkel, eladó.

BEÉPÍTÉSI ADATOK:
- övezet: Lke-O-3
- beépítési mód: szabadon álló
- telek területe: 880 m2
- megengedett beépítettség: 30%
- megengedett zöldfelületi mérték: 60%
- megengedett épületmagasság: 5,5 m
- megengedett szintterületi mutató: 0,6


- tervez
...
+ Tovább olvasom
Lokáció
2072 Zsámbék