Nyelv:
Kezdd el!
Eladó
Kiadó
Tulajdonos vagyok
Ingatlanos vagyok
Zoomlla-funkciók
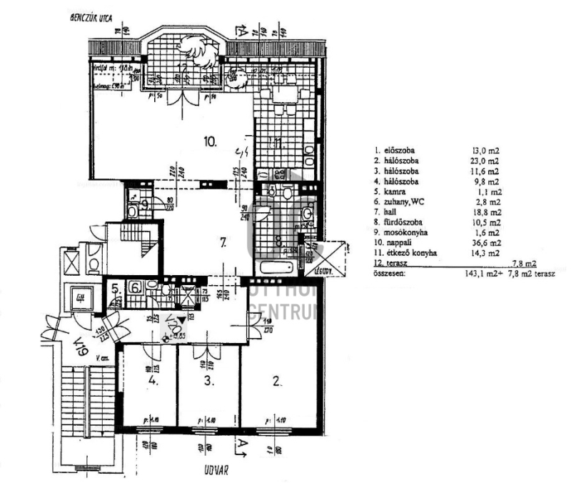
Eladó lakás Budapest VI. Diplomatane..
1068 Budapest
ID: 62682
249 M Ft (1.7 M Ft/m2)
Terület
147 m2
Hálószobák
4
Ingatlan adatok
Típus: Lakás
Terület: 147 m2
Hálószobák: 4
Építés éve: 20+ éve
Ár: 249 000 000 Ft
Ár/m2: 1.7 M Ft/m2
Emelet: Felső szint
Kilátás az ingatlanból: Város
Leírás
A Diplomatanegyedben, a Városliget közvetlen közelében panorámás lakás eladó.

A lakás népszerű Benczúr utcában található, a társasház legfelső, 5. szintjén kilátással a Budai hegyekre, a Vajdahunyad várra.
Ablakaiból és 8 m2-es teraszáról fantasztikus panoráma tárul elénk magasan a fák lombkoronája felett.
A lakás tulajdoni lapon 124 m2-es, a való
...
+ Tovább olvasom
Lokáció
1068 Budapest