Nyelv:
Kezdd el!
Eladó
Kiadó
Tulajdonos vagyok
Ingatlanos vagyok
Zoomlla-funkciók
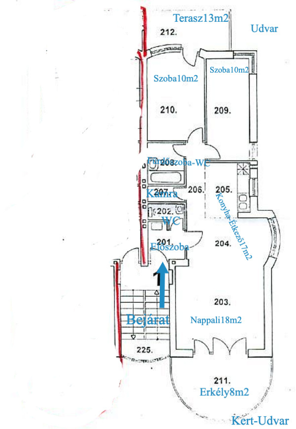
Eladó lakás Budapest XII. 225m2
1125 Budapest
ID: 62675
316 M Ft (1.4 M Ft/m2)
Terület
225 m2
Hálószobák
8
Ingatlan adatok
Típus: Lakás
Terület: 225 m2
Hálószobák: 8
Építés éve: 20+ éve
Ár: 316 000 000 Ft
Ár/m2: 1.4 M Ft/m2
Emelet: 1+ emelet
Kilátás az ingatlanból: Park
Leírás
DUPLA TERASZOS ÉS KERTKAPCSOLATOS, FELÚJÍTOTT, TÁROLÓVAL, FELSZÍNI BEÁLLÓVAL, GARÁZZSAL...KIVÉTELES LEHETŐSÉG A PIACON !

Svábhegy és Kútvölgy határán DUPLA TERASZOS ÉS KERTKAPCSOLATOS eladó LAKÁS - GARÁZS , TÁROLÓK, FELSZÍNI GÉPJÁRMŰBEÁLLÓVAL !

Budapest legtisztább levegőjű városrészén, csendes, igényes és biztonságos környékén, 5 lakásos társas
...
+ Tovább olvasom
Jellemzők
  • Erkély
Lokáció
1125 Budapest