Nyelv:
Kezdd el!
Eladó
Kiadó
Tulajdonos vagyok
Ingatlanos vagyok
Zoomlla-funkciók
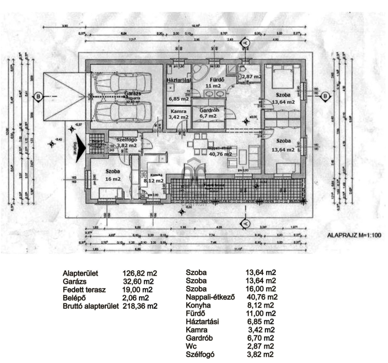
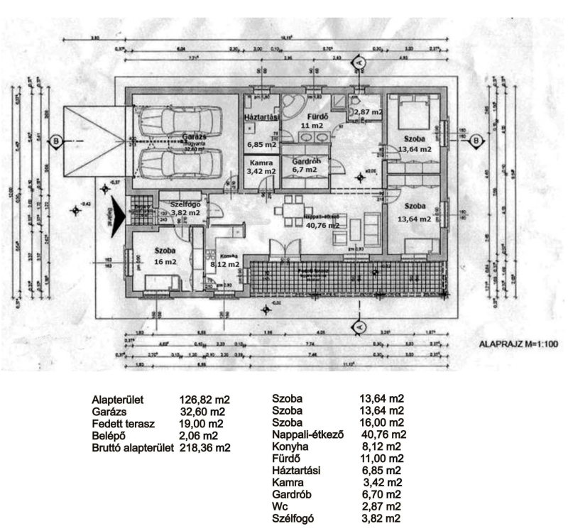
Eladó ház Páty 160m2
2071 Páty
ID: 62332
125 M Ft (189 E Ft/m2)
Terület
660 m2
Hálószobák
4
Ingatlan adatok
Típus: Ház
Terület: 160 m2
Erkély / Terasz területe: 1000 m2
Hálószobák: 4
Építés éve: Max. 20 éve
Ár: 125 000 000 Ft
Ár/m2: 189 E Ft/m2
Emelet: 1+ emelet
Leírás
Fiatal felnőttek figyelem! Most egy igazán különleges lehetőséget kínálunk számodra, amely nemcsak egy otthont, hanem egy életstílust is jelent. A Pest vármegyei Pátyon, a felkapott környéken, egy használt ház várja új gazdáját, amely tökéletes választás lehet, ha a nyugalomra és a természet közelségére vágysz, de mégis szeretnél városi kényelmet. ...
+ Tovább olvasom
Lokáció
2071 Páty