Nyelv:
Kezdd el!
Eladó
Kiadó
Tulajdonos vagyok
Ingatlanos vagyok
Zoomlla-funkciók
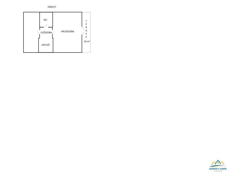
Eladó ház Balatonakarattya 65m2
8172 Balatonakarattya
ID: 62189
54.9 M Ft (224 E Ft/m2)
Terület
245 m2
Hálószobák
3
Ingatlan adatok
Típus:
Terület: 65 m2
Erkély / Terasz területe: 360 m2
Hálószobák: 3
Építés éve: 20+ éve
Ár: 54 900 000 Ft
Ár/m2: 224 E Ft/m2
Emelet: 1+ emelet
Leírás
BALATONAKARATTYA MAGASPARTI RÉSZÉN IKERFÉL NYARALÓ ELADÓ!

A méltán közkedvelt Kisfaludy sétánytól 5 perc gyalogos távolságra, a Debreceni lejárótól 100 méterre, iker nyaraló bal oldali része eladó 54.9 mFt.
A nyaraló stabil állapotú,osztatlan közös telken ,ügyvédi megosztással.
Mindkét iker külön közüzemi órákkal rendelkezik.
Falazata, tégla, cser
...
+ Tovább olvasom
Lokáció
8172 Balatonakarattya