Nyelv:
Kezdd el!
Eladó
Kiadó
Tulajdonos vagyok
Ingatlanos vagyok
Zoomlla-funkciók
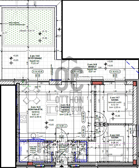
Eladó lakás Siófok 53m2
8600 Siófok
ID: 61867
109.9 M Ft (2.1 M Ft/m2)
Terület
53 m2
Hálószobák
3
Ingatlan adatok
Típus: Lakás
Terület: 53 m2
Hálószobák: 3
Építés éve: Max. 5 éve
Ár: 109 900 000 Ft
Ár/m2: 2.1 M Ft/m2
Emelet: Felső szint
Kilátás az ingatlanból: Park
Leírás
Kedves Érdeklődő!
Egy új, modern lakás eladásra kínálásával állunk Önök elé, melynek alapterülete 52.56 nm és 3 szobával rendelkezik és egy erkély 10 nm, illetve egy zöldtetős terasz 24 nm.
Az ingatlan kiváló állapotban van, és egyedi megoldásokkal lett kialakítva, hogy otthonos és kellemes légkört teremtsen.
MOST KÜLÖNLEGES AKCIÓ!
KEDVEZMÉNYES
...
+ Tovább olvasom
Lokáció
8600 Siófok