Nyelv:
Kezdd el!
Eladó
Kiadó
Tulajdonos vagyok
Ingatlanos vagyok
Zoomlla-funkciók
Eladó lakás Siófok 52m2
8600 Siófok
ID: 61866
79.9 M Ft (1.5 M Ft/m2)
Terület
52 m2
Hálószobák
3
Ingatlan adatok
Típus: Lakás
Terület: 52 m2
Hálószobák: 3
Építés éve: Max. 5 éve
Ár: 79 900 000 Ft
Ár/m2: 1.5 M Ft/m2
Emelet: Felső szint
Kilátás az ingatlanból: Park
Leírás
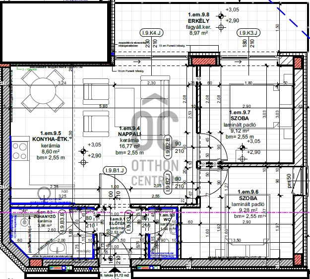
1.emeleti teraszos lakás .

MOST KÜLÖNLEGES AKCIÓ!
KEDVEZMÉNYES LAKÁSÁR + AJÁNDÉK KONYHABÚTOR+ AJÁNDÉK PARKOLÓ! Szeptember 15 -IG TART!

Tekintse meg saját szemével, foglalja le Aranyparti lakását !

Kiváló állapotú, új építésű lakás eladó! Az ingatlan alapterülete 51.77 nm, 3 szobával és 1 fürdőszobával rendelkezik. A terasz mérete 8.97 nm,
...
+ Tovább olvasom
Lokáció
8600 Siófok