Nyelv:
Kezdd el!
Eladó
Kiadó
Tulajdonos vagyok
Ingatlanos vagyok
Zoomlla-funkciók
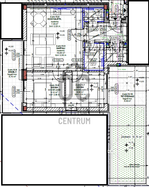
Eladó lakás Siófok 55m2
8600 Siófok
ID: 61859
90.9 M Ft (1.7 M Ft/m2)
Terület
55 m2
Hálószobák
3
Ingatlan adatok
Típus: Lakás
Terület: 55 m2
Hálószobák: 3
Építés éve: Max. 5 éve
Ár: 90 900 000 Ft
Ár/m2: 1.7 M Ft/m2
Emelet: Felső szint
Kilátás az ingatlanból: Park
Leírás
Tetőteraszos, penthouse lakás .

MOST KÜLÖNLEGES AKCIÓ!
KEDVEZMÉNYES LAKÁSÁR + AJÁNDÉK KONYHABÚTOR+ AJÁNDÉK PARKOLÓ! Szeptember 15 -IG TART!



Tekintse meg saját szemével, foglalja le Aranyparti lakását !


Keressen az elérhetőségeimen a hét minden napján!

Szívesen elkalauzolom, bemutatom a projektet, illetve más új és használt Balatoni ingatlan
...
+ Tovább olvasom
Lokáció
8600 Siófok