Nyelv:
Kezdd el!
Eladó
Kiadó
Tulajdonos vagyok
Ingatlanos vagyok
Zoomlla-funkciók
Eladó lakás Balatonszemes 69m2
8636 Balatonszemes
ID: 61792
86.7 M Ft (1.3 M Ft/m2)
Terület
69 m2
Hálószobák
3
Ingatlan adatok
Típus: Lakás
Terület: 69 m2
Hálószobák: 3
Építés éve: Max. 5 éve
Ár: 86 723 000 Ft
Ár/m2: 1.3 M Ft/m2
Emelet: 1+ emelet
Kilátás az ingatlanból: Park
Leírás
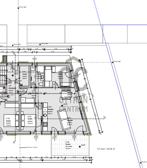
3 szobás kertkapcsolatos lakás, plusz terasz. Nettó 62,15 nm + 14,22 nm terasz.
Saját kertrész: 122,3 nm.
Projekt bemutatása

Balatonszemesen a parttól 600 méterre AA++ energia besorolású luxus lakópark épül. A 92 lakásos, összesen 23 darab 2 - 4 lakásos tömbböl álló területen az l. és a ll. ütem építkezése 2023 áprilisában megkezdődik, és 2023. jú
...
+ Tovább olvasom
Lokáció
8636 Balatonszemes