Nyelv:
Kezdd el!
Eladó
Kiadó
Tulajdonos vagyok
Ingatlanos vagyok
Zoomlla-funkciók
Eladó ház Siófok 90m2
8600 Siófok
ID: 61743
159.9 M Ft (1.8 M Ft/m2)
Terület
90 m2
Hálószobák
3
Ingatlan adatok
Típus:
Terület: 90 m2
Hálószobák: 3
Építés éve: Max. 5 éve
Ár: 159 900 000 Ft
Ár/m2: 1.8 M Ft/m2
Emelet: 1+ emelet
Kilátás az ingatlanból: Park
Leírás
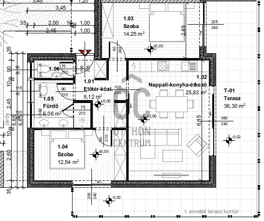
ELADÓ SIÓFOKI VÍZPARTI FÖLDSZINTI LUXUS LAKÁS !

90 nm ( fél terasszal számolva).
Elosztása:
2 hálószoba, nappali, amerikai konyha, előszoba, fürdőszoba +WC, WC, terasz és egy szép nagy kertkapcsolat.

A lakáshoz parkoló kötelezően vásárolandó, ára: 3,5 millió Ft.

A lakás teraszáról a BALATON KELETI OLDALI PANORÁMÁJÁBAN GYÖNYÖRKÖDHETÜNK!


13 l
...
+ Tovább olvasom
Lokáció
8600 Siófok