Nyelv:
Kezdd el!
Eladó
Kiadó
Tulajdonos vagyok
Ingatlanos vagyok
Zoomlla-funkciók
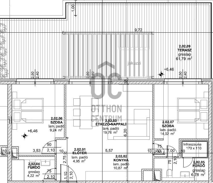
Eladó ház Siófok 101m2
8600 Siófok
ID: 61740
255.3 M Ft (2.5 M Ft/m2)
Terület
101 m2
Hálószobák
3
Ingatlan adatok
Típus:
Terület: 101 m2
Hálószobák: 3
Építés éve: Max. 5 éve
Ár: 255 270 000 Ft
Ár/m2: 2.5 M Ft/m2
Emelet: 1+ emelet
Kilátás az ingatlanból: Park
Leírás
Vízparti új építésű lakást keres vagy befektetne Siófokon?
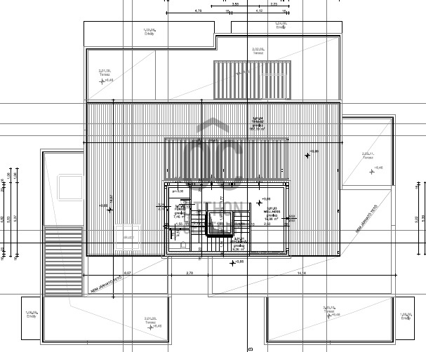
A TÁRSASHÁZ közvetlenül a vízparton épül.
13+40 egyedi elrendezésű, egész évben lakható eladó apartmant kínálunk, 50-120 m2 közötti méretekben, hogy Ön biztosan megtalálja az igényeinek megfelelőt.
Átadás 2023 II. félév I.ütem
Kössék le fix áron most nyaralójukat !
Ezüstparti luxus minőségi
...
+ Tovább olvasom
Lokáció
8600 Siófok