Nyelv:
Kezdd el!
Eladó
Kiadó
Tulajdonos vagyok
Ingatlanos vagyok
Zoomlla-funkciók
Eladó lakás Újhartyán 73m2
2367 Újhartyán
ID: 61584
68.7 M Ft (941 E Ft/m2)
Terület
73 m2
Hálószobák
3
Ingatlan adatok
Típus: Lakás
Terület: 73 m2
Hálószobák: 3
Építés éve: Max. 5 éve
Ár: 68 679 100 Ft
Ár/m2: 941 E Ft/m2
Emelet: Felső szint
Leírás
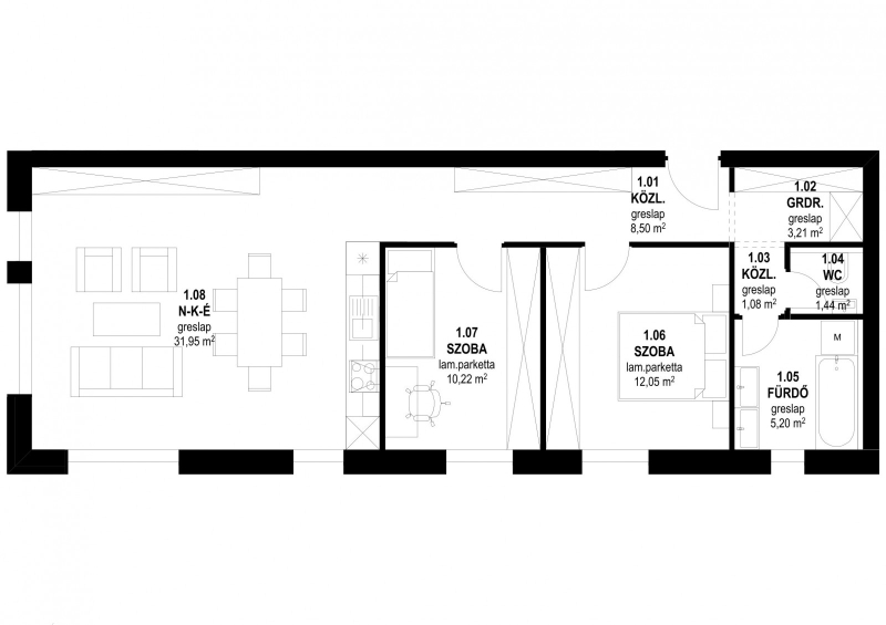
Eladó Újhartyán város központi részén egy két utcára nyíló hét lakásos új építésű társasház földszinti 73,66 m2 (I.) lakása, és a hozzá tartozó 20,19 m2 terasz melynek árát a vételár tartalmazza.
A magas minőségű és műszaki színvonalú lakásban egy közlekedő (8,50 m2), kettő szoba (12,05 m2, 10,22 m2), amerikai konyhás nappali (31,95 m2), gardrób (3
...
+ Tovább olvasom
Lokáció
2367 Újhartyán