Nyelv:
Kezdd el!
Eladó
Kiadó
Tulajdonos vagyok
Ingatlanos vagyok
Zoomlla-funkciók
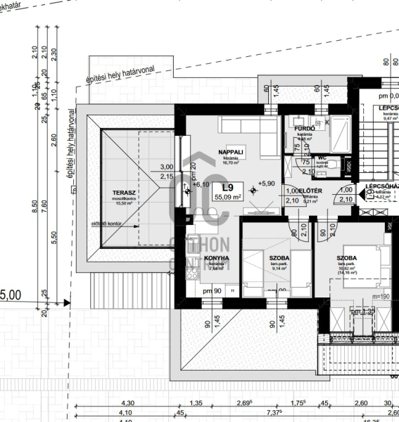
Eladó lakás Balatonudvari 55m2
8242 Balatonudvari
ID: 61064
86.9 M Ft (1.6 M Ft/m2)
Terület
55 m2
Hálószobák
3
Ingatlan adatok
Típus: Lakás
Terület: 55 m2
Hálószobák: 3
Építés éve: Max. 5 éve
Ár: 86 900 000 Ft
Ár/m2: 1.6 M Ft/m2
Emelet: Felső szint
Kilátás az ingatlanból: Park
Leírás
Fedezd fel ezt a páratlan lehetőséget, amely kifejezetten az idősebb korosztály számára kínál egy új otthont Balatonudvariban! Ez a kiváló állapotú lakás a Veszprém vármegyében található, és minden igényt kielégít, ami csak egy kényelmes és nyugodt élethez szükséges. A prémium kivitelezés és a modern design garantálja, hogy itt minden részlet a min...
+ Tovább olvasom
Jellemzők
  • Erkély
Lokáció
8242 Balatonudvari