Nyelv:
Kezdd el!
Eladó
Kiadó
Tulajdonos vagyok
Ingatlanos vagyok
Zoomlla-funkciók
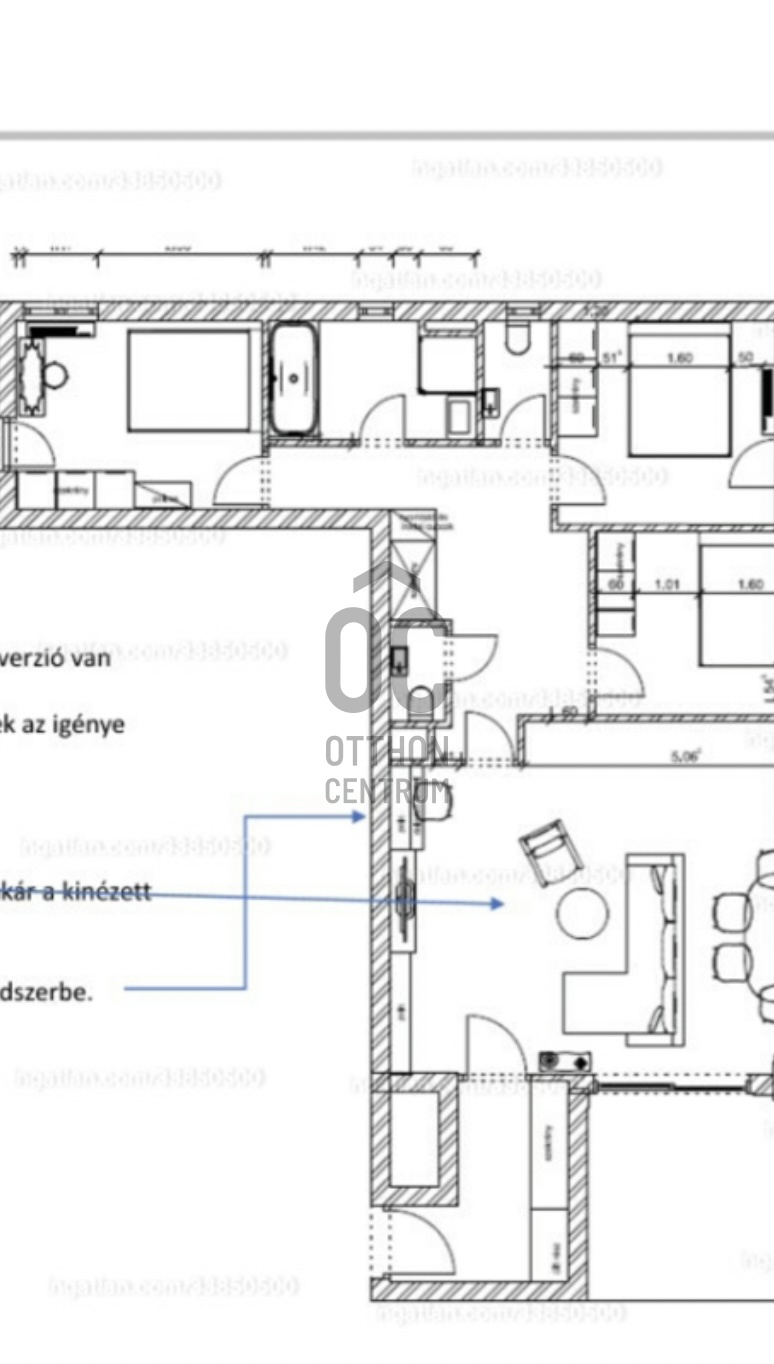
Eladó lakás Csopak 125m2
8229 Csopak
ID: 61046
198 M Ft (1.6 M Ft/m2)
Terület
125 m2
Hálószobák
4
Ingatlan adatok
Típus: Lakás
Terület: 125 m2
Hálószobák: 4
Építés éve: Max. 10 éve
Ár: 198 000 000 Ft
Ár/m2: 1.6 M Ft/m2
Emelet: Felső szint
Kilátás az ingatlanból: Park
Leírás
A lakás extrái:
Mélygarázs 15M Ft-ért megvásárolható.
Felszíni beálló kötelező megvásárolni 5M Ft, az ára.
a lakásból kilépve csupán néhány lépésre van a Balaton

rendkívül igényes lakberendező által kivitelezett belső kialakítás 10M ft-értr megvásáolható

nagyon békés csendes igényes lakók

elvehetetlen panoráma

igényes mindig rendben tartott ker
...
+ Tovább olvasom
Jellemzők
  • Erkély
Lokáció
8229 Csopak