Nyelv:
Kezdd el!
Eladó
Kiadó
Tulajdonos vagyok
Ingatlanos vagyok
Zoomlla-funkciók
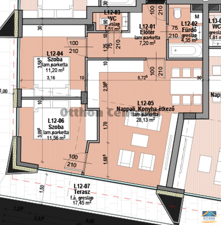
Eladó lakás Alsóörs 73m2
8226 Alsóörs
ID: 60969
149 M Ft (2 M Ft/m2)
Terület
73 m2
Hálószobák
3
Ingatlan adatok
Típus: Lakás
Terület: 73 m2
Hálószobák: 3
Építés éve: Max. 5 éve
Ár: 148 983 000 Ft
Ár/m2: 2 M Ft/m2
Emelet: Felső szint
Kilátás az ingatlanból: Park
Leírás
Megvételre kívánjuk Alsóörsön, a strandtól és kikötőtél két perces sétára ezt a luxus minőségen épülő első emeleti lakást.
Erről az új építésű projektről tudni kell, hogy a földszintjén négy db, az első emeleten öt darab, a második emeleten is szintén öt db lakás kerül kialakításra, és a harmadik szintre egy lakást tervezett építtető.
Ahhoz, hogy k
...
+ Tovább olvasom
Jellemzők
  • Erkély
Lokáció
8226 Alsóörs