Nyelv:
Kezdd el!
Eladó
Kiadó
Tulajdonos vagyok
Ingatlanos vagyok
Zoomlla-funkciók
Eladó lakás Budapest II. Rózsadomb ..
1023 Budapest
ID: 60951
324 M Ft (3 M Ft/m2)
Terület
108 m2
Hálószobák
3
Ingatlan adatok
Típus: Lakás
Terület: 108 m2
Hálószobák: 3
Építés éve: Max. 5 éve
Ár: 324 000 000 Ft
Ár/m2: 3 M Ft/m2
Emelet: Felső szint
Kilátás az ingatlanból: Park
Leírás
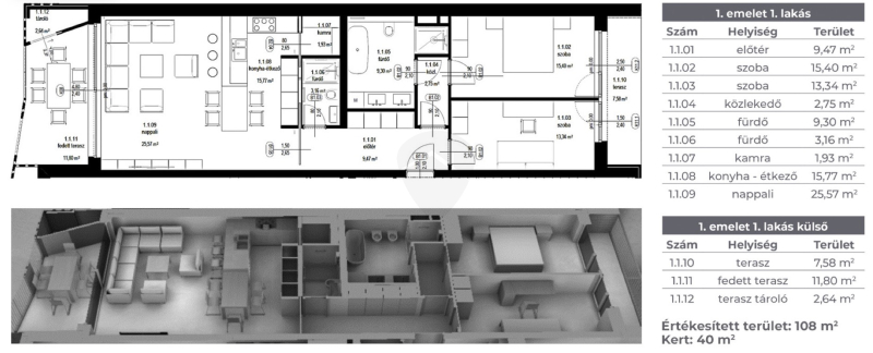
Megvételre kínálunk egy 5 lakásos új építésű luxus társasházban egy első emeleti lakást. (I.emelet 1.)

Az 1. és 2. emeleten 2 – 2 db modern alaprajzi elrendezésű lakás, közös és privát kerttel és közös medencével.

- a lakás értékesített területe 108 nm,
- nappali,
- konyha étkezővel
- 2 hálószobával valamint 2 fürdőszobával rendelkezik,
- 2 ter
...
+ Tovább olvasom
Lokáció
1023 Budapest