Nyelv:
Kezdd el!
Eladó
Kiadó
Tulajdonos vagyok
Ingatlanos vagyok
Zoomlla-funkciók
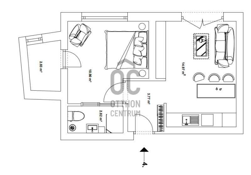
Eladó lakás Kőszeg 35m2
9730 Kőszeg
ID: 60696
31.9 M Ft (911 E Ft/m2)
Terület
35 m2
Hálószobák
1
Ingatlan adatok
Típus: Lakás
Terület: 35 m2
Hálószobák: 1
Építés éve: Max. 5 éve
Ár: 31 900 000 Ft
Ár/m2: 911 E Ft/m2
Emelet: Felső szint
Kilátás az ingatlanból: Belső udvar
Leírás
Fiatal felnőttek figyelem! Ha egy új, modern lakásra vágytok, az osztrák határtól 3 km-re, akkor ezt az ingatlant Nektek találtuk ki! Az ingatlan alapterülete 41 nm, egy tágas szobával , nappali-konyhával és egy fürdőszobával rendelkezik. Az ingatlan állapota kiváló, és a fűtést elektromos (infra) rendszer biztosítja. A prémium kivitelezés és a LE...
+ Tovább olvasom
Lokáció
9730 Kőszeg