Nyelv:
Kezdd el!
Eladó
Kiadó
Tulajdonos vagyok
Ingatlanos vagyok
Zoomlla-funkciók
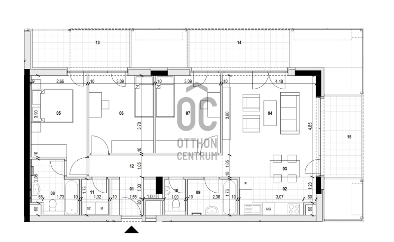
Eladó lakás Budapest IX. 87m2
1095 Budapest
ID: 60610
169.8 M Ft (2 M Ft/m2)
Terület
87 m2
Hálószobák
4
Ingatlan adatok
Típus: Lakás
Terület: 87 m2
Hálószobák: 4
Építés éve: Max. 5 éve
Ár: 169 785 000 Ft
Ár/m2: 2 M Ft/m2
Emelet: Felső szint
Kilátás az ingatlanból: Belső udvar
Leírás
Ez a lakás csendes zöld belső kert és zöld tetőkert felé néz.2 fürdőszobával és háztartási helyiséggel rendelkezik.
Projekt bemutatása

Egy modern, zöld otthont keresel, közel a belvároshoz, amely már jövő tavasszal beköltözhető? A Green Corner a tökéletes választás: gazdag növényzetével zöld oázis, kényelmes 10%-90% fizetési ütemezést kínál, 5% ro
...
+ Tovább olvasom
Lokáció
1095 Budapest