Nyelv:
Kezdd el!
Eladó
Kiadó
Tulajdonos vagyok
Ingatlanos vagyok
Zoomlla-funkciók
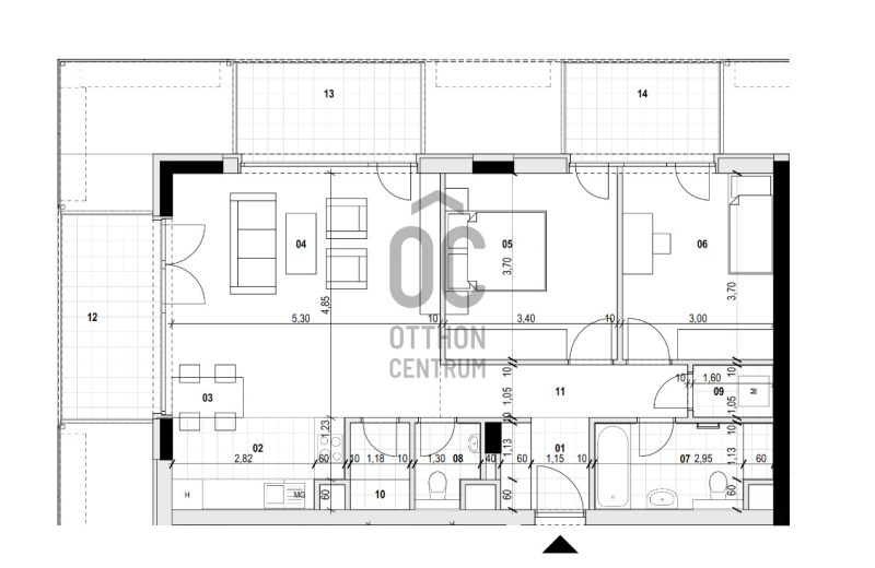
Eladó lakás Budapest IX. 76m2
1095 Budapest
ID: 60609
144.9 M Ft (1.9 M Ft/m2)
Terület
76 m2
Hálószobák
3
Ingatlan adatok
Típus: Lakás
Terület: 76 m2
Hálószobák: 3
Építés éve: Max. 5 éve
Ár: 144 900 000 Ft
Ár/m2: 1.9 M Ft/m2
Emelet: Felső szint
Kilátás az ingatlanból: Park
Leírás
Ez a lakás csendes zöld belső kert felé és zöld tetőkert felé néz. DNy-i - ÉNY-i tájolású. Külön háztartási helyiséggel rendelkezik.
Projekt bemutatása

Egy modern, zöld otthont keresel, közel a belvároshoz, amely már jövő tavasszal beköltözhető? A Green Corner a tökéletes választás: gazdag növényzetével zöld oázis, kényelmes 10%-90% fizetési üteme
...
+ Tovább olvasom
Lokáció
1095 Budapest