Nyelv:
Kezdd el!
Eladó
Kiadó
Tulajdonos vagyok
Ingatlanos vagyok
Zoomlla-funkciók
Eladó ház Szentendre 150m2
2000 Szentendre
ID: 60522
89 M Ft (593 E Ft/m2)
Terület
150 m2
Hálószobák
0
Ingatlan adatok
Típus:
Terület: 150 m2
Hálószobák: 0
Építés éve: 20+ éve
Ár: 89 000 000 Ft
Ár/m2: 593 E Ft/m2
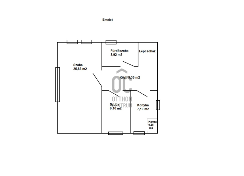
Emelet: Felső szint
Leírás
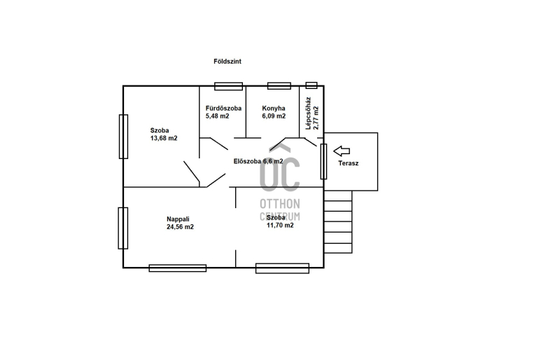
Eladó Szentendrén, a Dunakanyar körúton, közel a Papszigethez egy nettó 150 nm-es, belső 3 szintes (garázs szinttel együtt), 6 szobás, teraszos családi ház, 827 nm-es telken, ami elhelyezkedése miatt üzlethelyiségként kiválóan működtethető.

- Szentendrén központi helyen, a Dunakanyar körúton helyezkedik el, a Papszigethez közel
- Busz 2 percen bel
...
+ Tovább olvasom
Lokáció
2000 Szentendre