Nyelv:
Kezdd el!
Eladó
Kiadó
Tulajdonos vagyok
Ingatlanos vagyok
Zoomlla-funkciók
Eladó lakás Budapest VI. Nagykörút..
1068 Budapest
ID: 60483
166 M Ft (1.5 M Ft/m2)
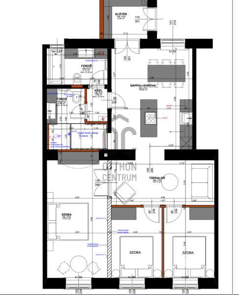
Terület
110 m2
Hálószobák
5
Ingatlan adatok
Típus: Lakás
Terület: 110 m2
Hálószobák: 5
Építés éve: 20+ éve
Ár: 166 000 000 Ft
Ár/m2: 1.5 M Ft/m2
Emelet: Felső szint
Kilátás az ingatlanból: Város
Leírás
Eladásra kínálok a VI. Kerületben, a Király utcában egy felújított két egymás mellett kialakított lakást. 80m2 és 27m2 + 10m2 galériás lakást, így kiváló befektetési lehetőség.

Nagylakás (80 m²): nappali-konyha plusz 3 hálószoba, 2 fürdőszoba, Klasszikus-minimalista dizájn, megőrzött századfordulós elemekkel. Eredeti, felújított ablakok és egye
...
+ Tovább olvasom
Lokáció
1068 Budapest