Nyelv:
Kezdd el!
Eladó
Kiadó
Tulajdonos vagyok
Ingatlanos vagyok
Zoomlla-funkciók
Eladó lakás Budapest XIII. 45m2
1138 Budapest
ID: 60353
83.9 M Ft (1.9 M Ft/m2)
Terület
45 m2
Hálószobák
2
Ingatlan adatok
Típus: Lakás
Terület: 45 m2
Hálószobák: 2
Építés éve: Max. 5 éve
Ár: 83 900 000 Ft
Ár/m2: 1.9 M Ft/m2
Emelet: Felső szint
Kilátás az ingatlanból: Park
Leírás
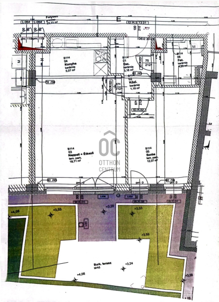
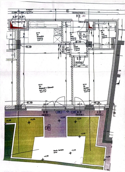
A főváros közkedvelt Duna-parti lakóparkjában, a Marina Parton, 2024-ben átadott társasház 1. emeletén, 45 m² alapterületű + fedett terasszal és kertkapcsolattal rendelkező kétszobás, új építésű lakás eladó.

Miért ez a lakás?
- privát kertkapcsolat, kilátással a Budai-hegyekre
- kiváló tájolás, nyugati fekvésének köszönhetően kellően benapozott
-
...
+ Tovább olvasom
Lokáció
1138 Budapest