Nyelv:
Kezdd el!
Eladó
Kiadó
Tulajdonos vagyok
Ingatlanos vagyok
Zoomlla-funkciók
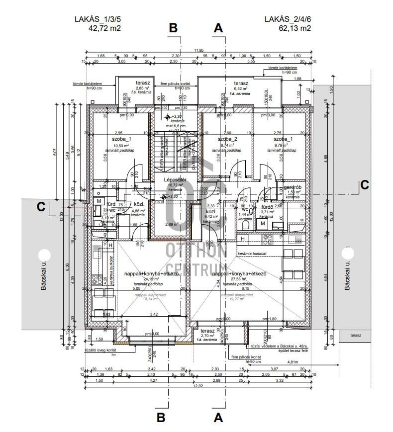
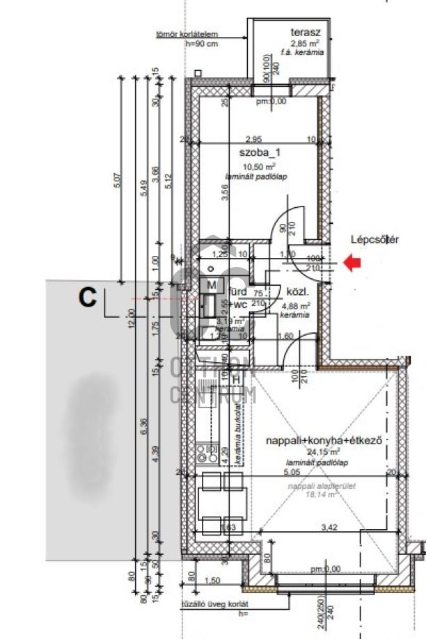
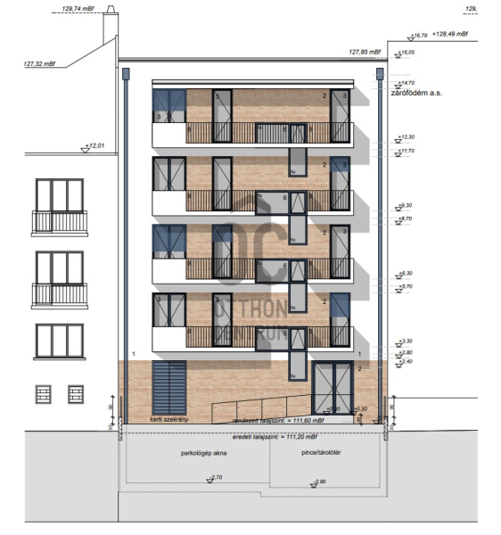
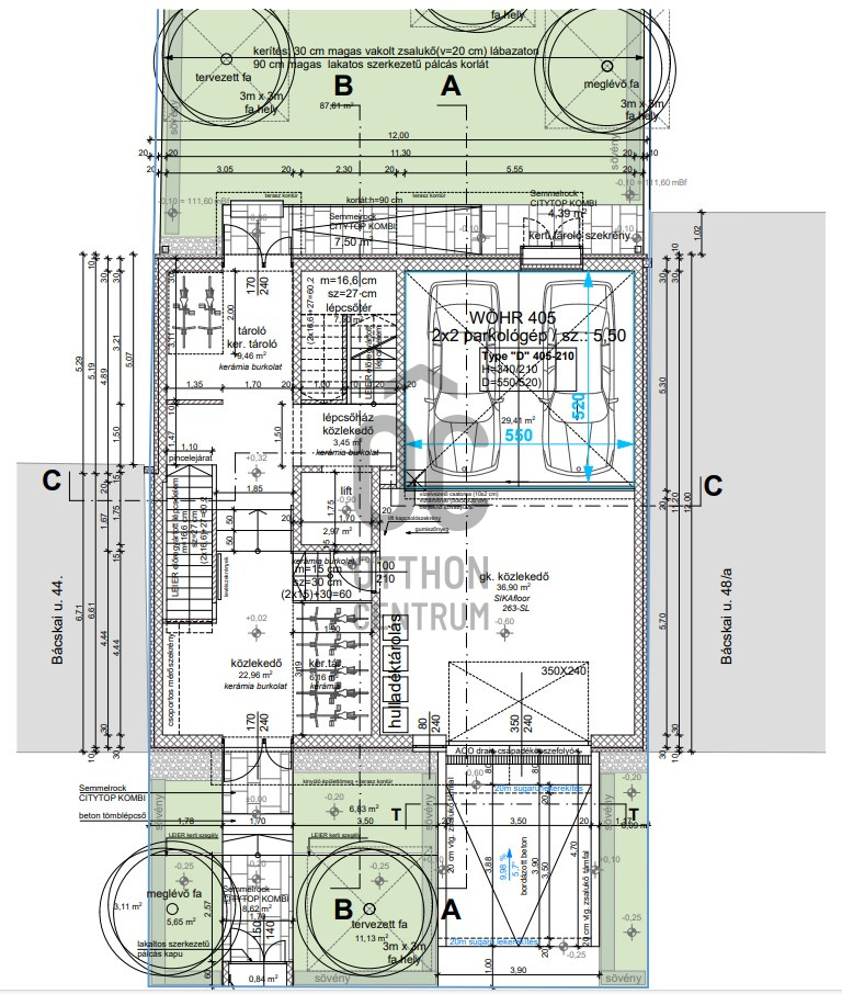
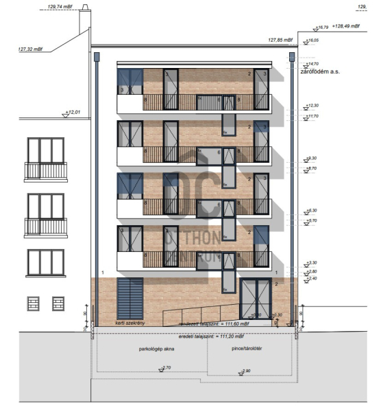
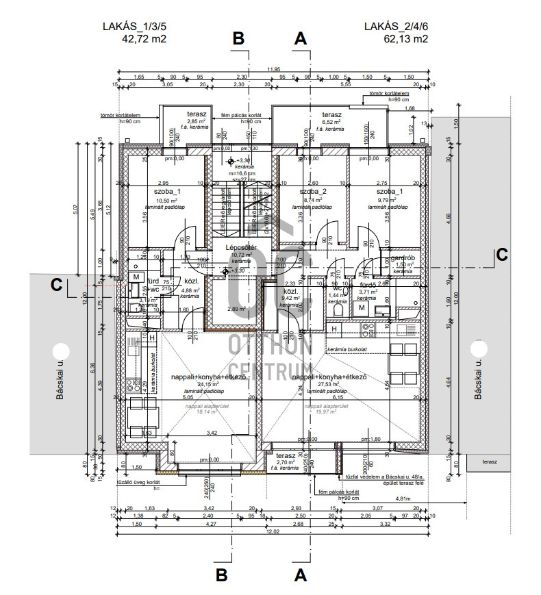
Eladó lakás Budapest XIV. 43m2
1145 Budapest
ID: 60310
75.1 M Ft (1.7 M Ft/m2)
Terület
43 m2
Hálószobák
2
Ingatlan adatok
Típus: Lakás
Terület: 43 m2
Hálószobák: 2
Építés éve: Max. 5 éve
Ár: 75 046 500 Ft
Ár/m2: 1.7 M Ft/m2
Emelet: Felső szint
Kilátás az ingatlanból: Város
Leírás
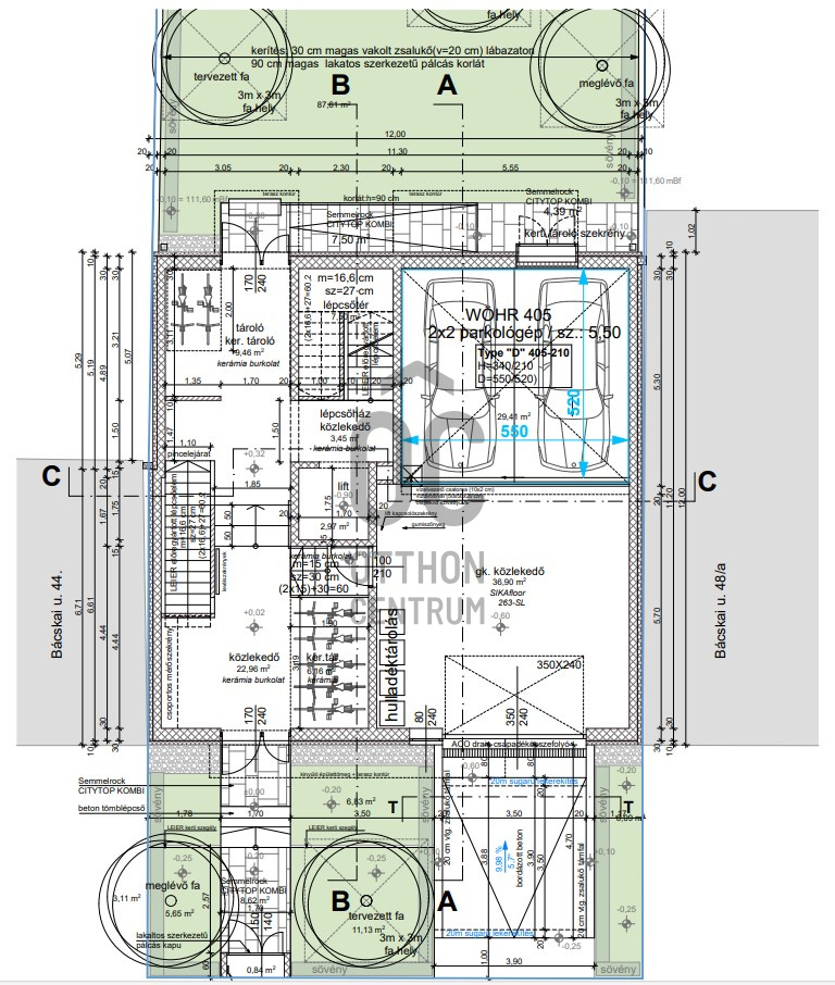
Herminamező (Budapest XIV. kerület, Zugló) zöldövezeti központjában, csodás, ősfás környezetben KIS LAKÁSSZÁMÚ társasházban kínálok eladásra egy amerikai konyhás nappali + hálószobás ERKÉLYES lakást most épülő társasházban, magas műszaki tartalommal.

Az épületet csendes, szinte forgalommentes, egyirányú utcában alakítják ki, a lakás erkélye, hálós
...
+ Tovább olvasom
Jellemzők
  • Erkély
Lokáció
1145 Budapest