Nyelv:
Kezdd el!
Eladó
Kiadó
Tulajdonos vagyok
Ingatlanos vagyok
Zoomlla-funkciók
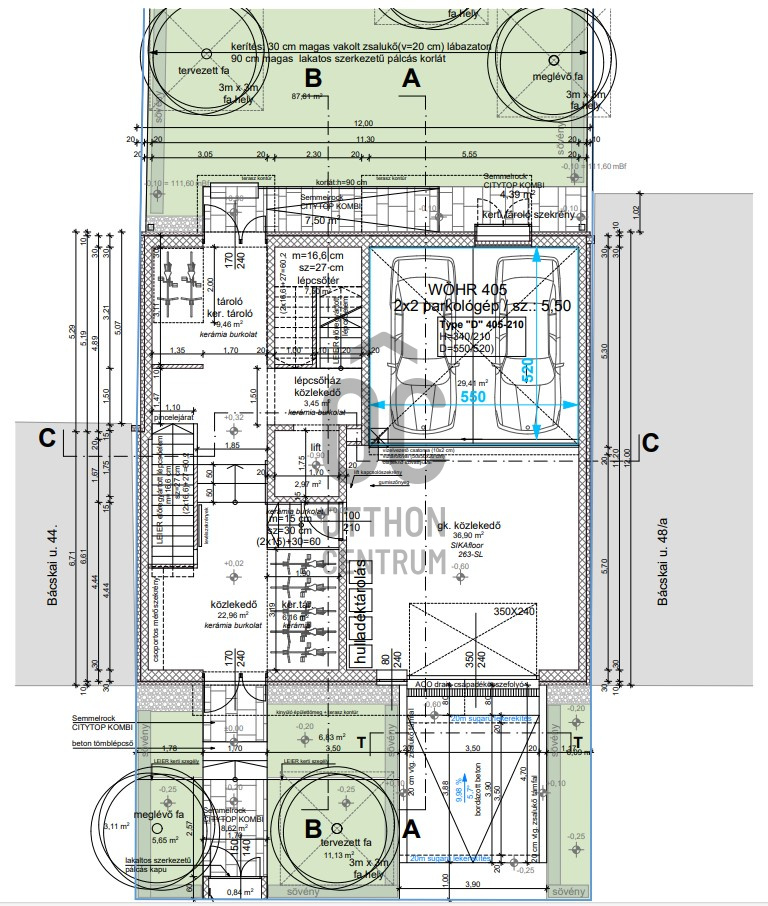
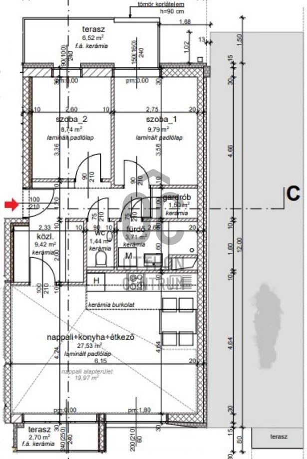
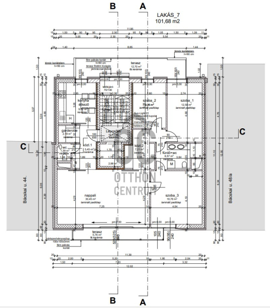
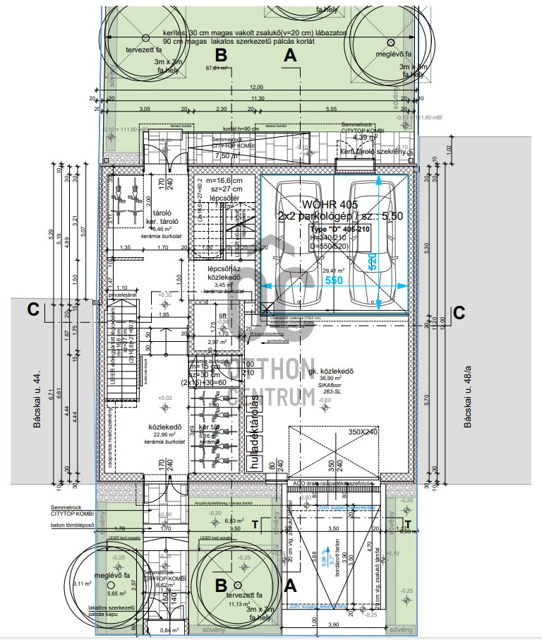
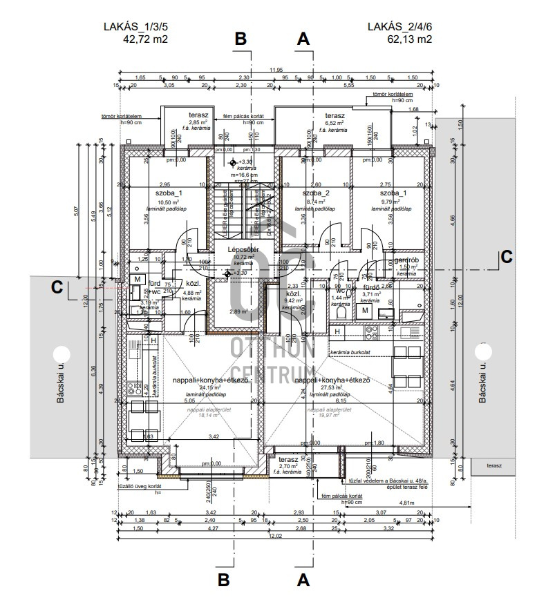
Eladó lakás Budapest XIV. 62m2
1145 Budapest
ID: 60309
113.5 M Ft (1.8 M Ft/m2)
Terület
62 m2
Hálószobák
3
Ingatlan adatok
Típus: Lakás
Terület: 62 m2
Hálószobák: 3
Építés éve: Max. 5 éve
Ár: 113 458 000 Ft
Ár/m2: 1.8 M Ft/m2
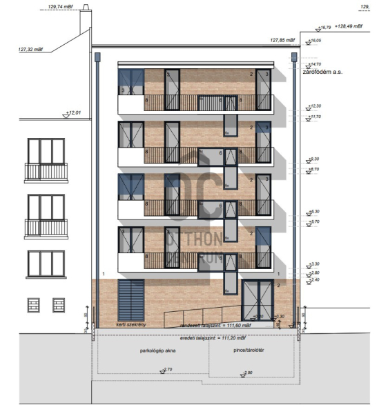
Emelet: Felső szint
Kilátás az ingatlanból: Város
Leírás
Herminamező (Budapest XIV. kerület, Zugló) zöldövezeti központjában, csodás, ősfás környezetben KIS LAKÁSSZÁMÚ társasházban kínálok eladásra egy amerikai konyhás nappali + 2 hálószobás TERASZOS és ERKÉLYES lakást most épülő társasházban, magas műszaki tartalommal.

Az épületet csendes, szinte forgalommentes, egyirányú utcában alakítják ki, amerikai
...
+ Tovább olvasom
Jellemzők
  • Erkély
Lokáció
1145 Budapest