Nyelv:
Kezdd el!
Eladó
Kiadó
Tulajdonos vagyok
Ingatlanos vagyok
Zoomlla-funkciók
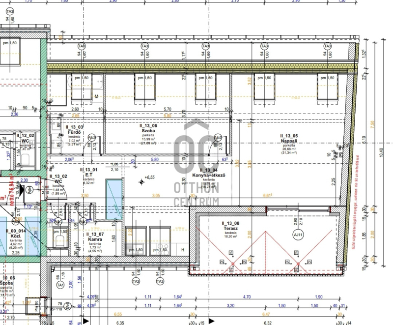
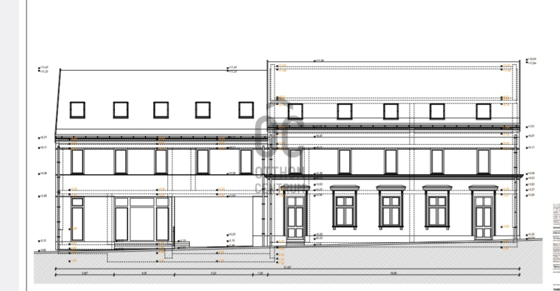
Eladó lakás Keszthely Belváros 86m2
8360 Keszthely
ID: 59877
107.5 M Ft (1.3 M Ft/m2)
Terület
86 m2
Hálószobák
2
Ingatlan adatok
Típus: Lakás
Terület: 86 m2
Hálószobák: 2
Építés éve: Max. 5 éve
Ár: 107 500 000 Ft
Ár/m2: 1.3 M Ft/m2
Emelet: Felső szint
Kilátás az ingatlanból: Park
Leírás
Befektetők figyelem! KESZTHELY BELVÁROSÁBAN, A FŐTÉR MELLETT ÚJÉPÍTÉSŰ PRÉMIUM LAKÁSOK ELADÓK!

--csendes forgalomtól mentes utcában, a fötér szomszédságában
--17 lakásos prémium társasház udvari kocsibeállóval
--első emeleti 77m2-es lakás +18m2 terasz
--3 rétegű nyílászárók , elektromos redőnnyel
-- burkolatok, járólapok, csempék kiváló minőségüek
...
+ Tovább olvasom
Lokáció
8360 Keszthely