Nyelv:
Kezdd el!
Eladó
Kiadó
Tulajdonos vagyok
Ingatlanos vagyok
Zoomlla-funkciók
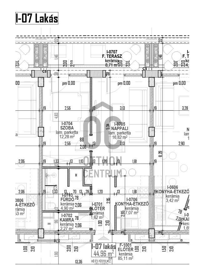
Eladó lakás Hajdúszoboszló 45m2
4200 Hajdúszoboszló
ID: 59871
59 M Ft (1.3 M Ft/m2)
Terület
45 m2
Hálószobák
2
Ingatlan adatok
Típus: Lakás
Terület: 45 m2
Hálószobák: 2
Építés éve: Max. 5 éve
Ár: 59 000 000 Ft
Ár/m2: 1.3 M Ft/m2
Emelet: Felső szint
Kilátás az ingatlanból: Város
Leírás
Ez az ingatlan hirdetés kifejezetten befektetők számára készült, akik olyan különleges lehetőséget keresnek, amely nemcsak lakóhelyet, hanem értékálló befektetést is jelent. Bemutatjuk neked ezt az új, első emeleti prémium kivitelezésű lakást, amely 44,96 nm alapterületű, és két tágas szobával rendelkezik. Az ingatlan ideális választás lehet akár s...
+ Tovább olvasom
Lokáció
4200 Hajdúszoboszló