Nyelv:
Kezdd el!
Eladó
Kiadó
Tulajdonos vagyok
Ingatlanos vagyok
Zoomlla-funkciók
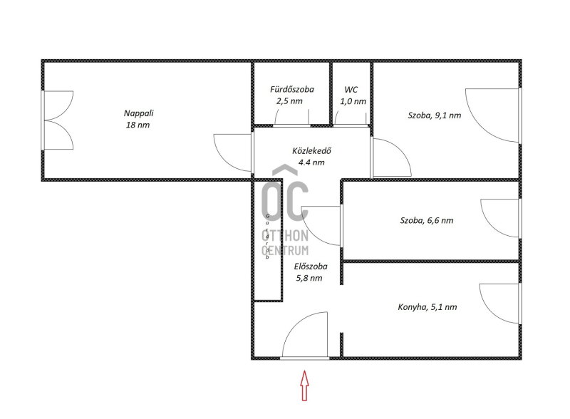
Eladó lakás Budapest IV. 53m2
1042 Budapest
ID: 59845
45.7 M Ft (862 E Ft/m2)
Terület
53 m2
Hálószobák
3
Ingatlan adatok
Típus: Lakás
Terület: 53 m2
Hálószobák: 3
Építés éve: 20+ éve
Ár: 45 700 000 Ft
Ár/m2: 862 E Ft/m2
Emelet: Felső szint
Kilátás az ingatlanból: Város
Leírás
Eladásra kínálunk a IV. kerületben, az Újpesti lakótelepen, 10 emeletes, panel építésű társasház, 3. emeletén, részben felújítandó, DK-i tájolású, 53 nm-es, 2 szobás, 1 félszobás, távfűtéses lakást. A korábban végzett esztétikai felújítás mellett az ingatlan gyári ablakait műanyag, hő- és hangszigetelő nyílászárókra cserélték és műanyag redőnyökkel...
+ Tovább olvasom
Lokáció
1042 Budapest