Nyelv:
Kezdd el!
Eladó
Kiadó
Tulajdonos vagyok
Ingatlanos vagyok
Zoomlla-funkciók
Eladó lakás Budapest XI. Kelenföld ..
1113 Budapest
ID: 59671
119 M Ft (1.1 M Ft/m2)
Terület
106 m2
Hálószobák
2
Ingatlan adatok
Típus: Lakás
Terület: 106 m2
Hálószobák: 2
Építés éve: 20+ éve
Ár: 119 000 000 Ft
Ár/m2: 1.1 M Ft/m2
Emelet: Felső szint
Kilátás az ingatlanból: Város
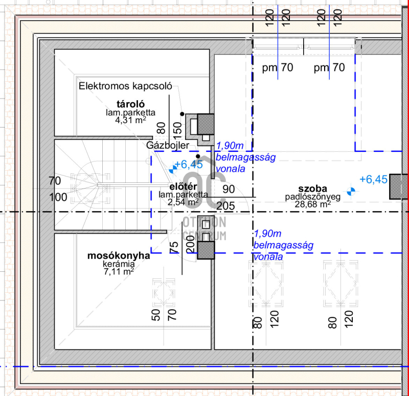
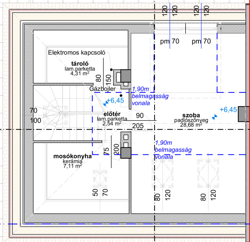
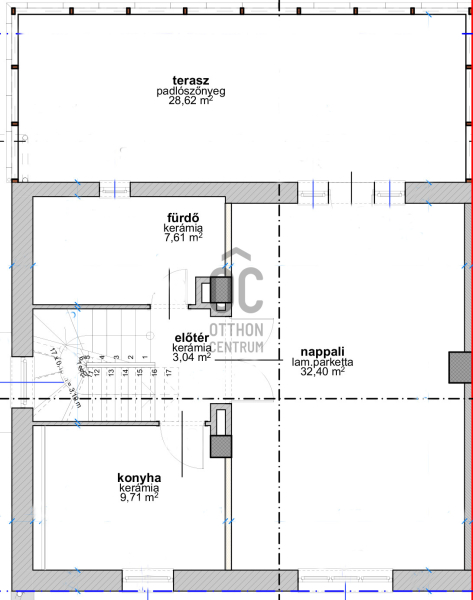
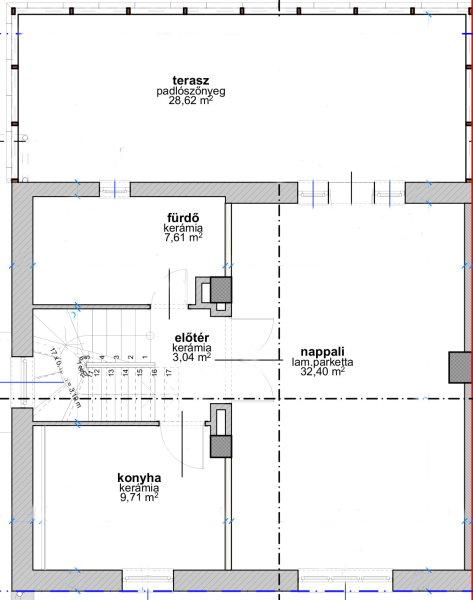
Leírás
Szeretne egy olyan utcában otthont találni ahol nincs átjáró forgalom, a szomszédok kedvesek, a madárcsicsergés és a nyugalom uralkodik minden reggel? Csak a költözésre szeretne fókuszálni, felújítással járó stresszt inkább megspórolná? Nem tudja eldönteni, hogy a tágas terasz vagy a kertkapcsolat lenne vonzóbb Önnek?
Jó szívvel ajánlom figyelméb
...
+ Tovább olvasom
Lokáció
1113 Budapest