Nyelv:
Kezdd el!
Eladó
Kiadó
Tulajdonos vagyok
Ingatlanos vagyok
Zoomlla-funkciók
Eladó lakás Budapest VI. Nagykörút..
1061 Budapest
ID: 59561
69.9 M Ft (1.5 M Ft/m2)
Terület
48 m2
Hálószobák
2
Ingatlan adatok
Típus: Lakás
Terület: 48 m2
Hálószobák: 2
Építés éve: 20+ éve
Ár: 69 900 000 Ft
Ár/m2: 1.5 M Ft/m2
Emelet: 1+ emelet
Kilátás az ingatlanból: Belső udvar
Leírás
Budapesten, a BELVÁROS szívében, a Belső VI. kerületben elérhető egy kiváló állapotú, frissen FELÚJÍTOTT lakás, amely ideális lehetőséget kínál akár a befektetők számára is.
AIRBNB engedéllyel rendelkezik, kifejezetten magas a hozam a tökéletes lokáció miatt.
Hosszútávú kiadáshoz is remek lehetőség.

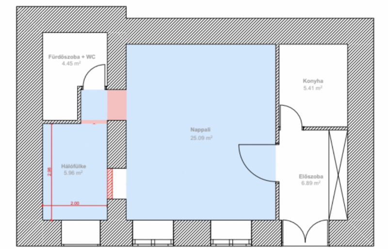
Az ingatlan alapterülete 47,8 négyzetméter.
A
...
+ Tovább olvasom
Lokáció
1061 Budapest