Nyelv:
Kezdd el!
Eladó
Kiadó
Tulajdonos vagyok
Ingatlanos vagyok
Zoomlla-funkciók
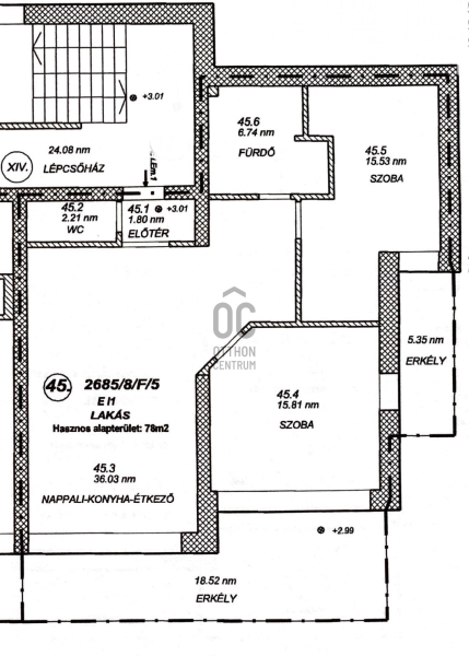
Eladó lakás Balatonalmádi 90m2
8220 Balatonalmádi
ID: 59067
299 M Ft (3.3 M Ft/m2)
Terület
90 m2
Hálószobák
3
Ingatlan adatok
Típus: Lakás
Terület: 90 m2
Hálószobák: 3
Építés éve: Max. 5 éve
Ár: 299 000 000 Ft
Ár/m2: 3.3 M Ft/m2
Emelet: Felső szint
Kilátás az ingatlanból: Belső udvar
Leírás
„Ékszerdoboz”, „igazi gyöngyszem”, „idill”... – ezek a szavak gyakran szerepelnek ingatlanhirdetésekben, és ezzel szinte elveszítették eredeti értéküket.
Mutatok egy valódi kivételt: egy ingatlant, amely valóban rászolgál minden emelkedett szóra!

Balatonalmádi legkedveltebb városrészében, Káptalanfüreden, azonnal birtokba vehető, kivételes adotts
...
+ Tovább olvasom
Jellemzők
  • Erkély
Lokáció
8220 Balatonalmádi