Nyelv:
Kezdd el!
Eladó
Kiadó
Tulajdonos vagyok
Ingatlanos vagyok
Zoomlla-funkciók
Eladó lakás Budapest VI. Nagykörút..
1066 Budapest
ID: 58971
184.5 M Ft (1.9 M Ft/m2)
Terület
95 m2
Hálószobák
4
Ingatlan adatok
Típus: Lakás
Terület: 95 m2
Hálószobák: 4
Építés éve: Max. 5 éve
Ár: 184 464 000 Ft
Ár/m2: 1.9 M Ft/m2
Emelet: Felső szint
Kilátás az ingatlanból: Város
Leírás
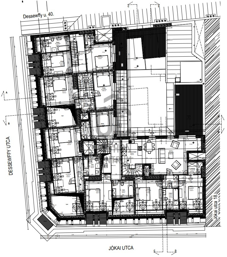
Most induló emeletráépítéssel és tetőtérbeépítéssel megvalósuló 7 lakásos projekt keretében kínálok eladásra Budapest VI. kerületében (Belső-Erzsébetváros) a Jókai utca és a Dessewffy utca saroképület tetején egy minden igényt kielégítő nappali+3 hálószobás, 94,67 nm-es, teraszos és erkélyes, duplex lakást.

A tervezés során elsődleges szempont vol
...
+ Tovább olvasom
Jellemzők
  • Erkély
Lokáció
1066 Budapest