Nyelv:
Kezdd el!
Eladó
Kiadó
Tulajdonos vagyok
Ingatlanos vagyok
Zoomlla-funkciók
Eladó lakás Budapest XIV. Alsóráko..
1141 Budapest
ID: 58949
98.2 M Ft (1.3 M Ft/m2)
Terület
76 m2
Hálószobák
3
Ingatlan adatok
Típus: Lakás
Terület: 76 m2
Hálószobák: 3
Építés éve: Max. 5 éve
Ár: 98 200 000 Ft
Ár/m2: 1.3 M Ft/m2
Emelet: Felső szint
Kilátás az ingatlanból: Park
Leírás
A tégla építésű új lakás a XIV. kerületben Alsórákoson, társasházi zöldövezeti környezetben frissen épül.
5 lakás kerül kialakításra (fszt., 1 emelet, 2 emelet ).
A zárt lépcsőház világos, ablakos. A lakásokhoz garázs és felszíni beálló is vásárolható.
A társasházhoz biciklitároló tartozik.

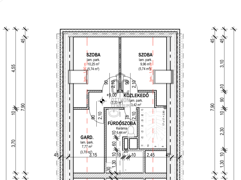
A lakás paraméterei:

-3 szoba, 75,54 m2 =76 m2

-bels
...
+ Tovább olvasom
Jellemzők
  • Erkély
Lokáció
1141 Budapest