Nyelv:
Kezdd el!
Eladó
Kiadó
Tulajdonos vagyok
Ingatlanos vagyok
Zoomlla-funkciók
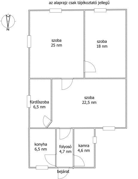
Eladó lakás Tápiószele 86m2
2766 Tápiószele
ID: 58809
12 M Ft (140 E Ft/m2)
Terület
86 m2
Hálószobák
3
Ingatlan adatok
Típus: Lakás
Terület: 86 m2
Hálószobák: 3
Építés éve: 20+ éve
Ár: 12 000 000 Ft
Ár/m2: 140 E Ft/m2
Emelet: 1+ emelet
Kilátás az ingatlanból: Belső udvar
Leírás
Eladóvá vált Tápiószelén, Vasútállomás közelében, 85, 75 nm-s, felújítandó, tégla építésű lakás, melyhez 900 nm-s udvar tartozik.
Az ingatlanban víz, villany és csatorna közművek találhatók, gáz az utcáról beköthető.
A nagy helységek jól alakíthatók igénye szerint.
Tehermentes, azonnal birtokba vehető.
Ha felkeltette érdeklődését és lát benne fant
...
+ Tovább olvasom
Lokáció
2766 Tápiószele