Nyelv:
Kezdd el!
Eladó
Kiadó
Tulajdonos vagyok
Ingatlanos vagyok
Zoomlla-funkciók
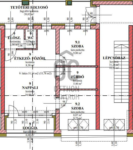
Eladó lakás Cegléd 52m2
2700 Cegléd
ID: 58501
46.4 M Ft (892 E Ft/m2)
Terület
52 m2
Hálószobák
3
Ingatlan adatok
Típus: Lakás
Terület: 52 m2
Hálószobák: 3
Építés éve: Max. 5 éve
Ár: 46 376 000 Ft
Ár/m2: 892 E Ft/m2
Emelet: 1+ emelet
Kilátás az ingatlanból: Város
Leírás
Ehhez a tetőtéri lakáshoz a nappali és étkező-konyha mellett, még két szoba tartozik, valamint egy 6 nm-es loggia.
Projekt bemutatása

Befektetők és Otthonkeresők figyelem! Új Építésű Lakások Cegléden!

Fedezze fel Cegléd legújabb ékkövét! 2025. december 31-én átadásra kerülő, 10 lakásos társasház várja új lakóit és befektetőit. A projektet magas m
...
+ Tovább olvasom
Jellemzők
  • Erkély
Lokáció
2700 Cegléd