Nyelv:
Kezdd el!
Eladó
Kiadó
Tulajdonos vagyok
Ingatlanos vagyok
Zoomlla-funkciók
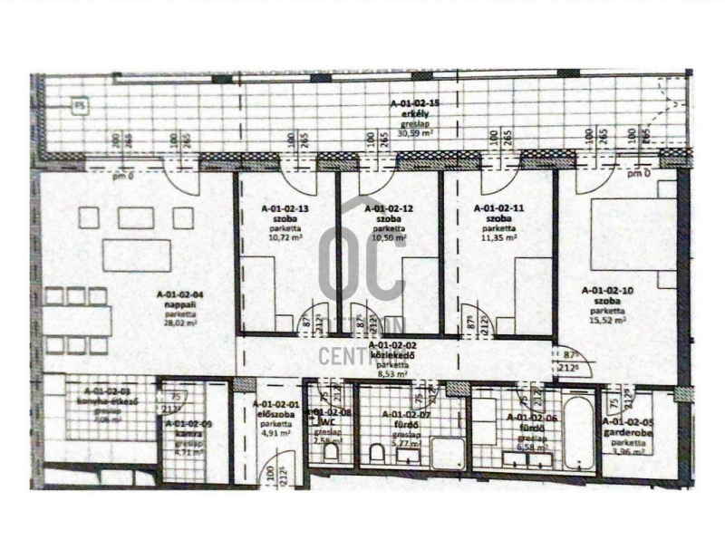
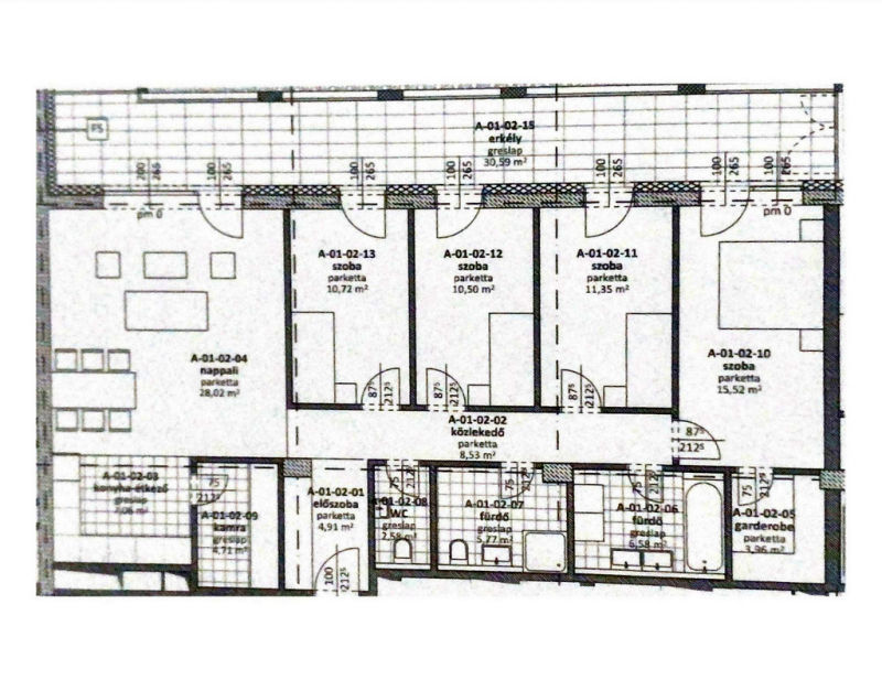
Eladó lakás Budapest XI. 121m2
1117 Budapest
ID: 58382
330 M Ft (2.7 M Ft/m2)
Terület
121 m2
Hálószobák
5
Ingatlan adatok
Típus: Lakás
Terület: 121 m2
Hálószobák: 5
Építés éve: Max. 5 éve
Ár: 330 000 000 Ft
Ár/m2: 2.7 M Ft/m2
Emelet: Felső szint
Kilátás az ingatlanból: Park
Leírás
Eladó Luxus Lakás a Budaparton

Főbb jellemzők:

Tágas és világos lakótér: A lakás tágas és világos, összesen 120 négyzetméteren 4 szoba áll rendelkezésére. Az ingatlan ideális választás családoknak, pároknak vagy akár azoknak is, akik otthonról dolgoznak. A jól megtervezett terek maximális kényelmet és praktikusságot nyújtanak mindennapi használat
...
+ Tovább olvasom
Jellemzők
  • Erkély
Lokáció
1117 Budapest