Nyelv:
Kezdd el!
Eladó
Kiadó
Tulajdonos vagyok
Ingatlanos vagyok
Zoomlla-funkciók
Eladó lakás Budapest VI. Nagykörút..
1068 Budapest
ID: 58204
119 M Ft (1.3 M Ft/m2)
Terület
89 m2
Hálószobák
4
Ingatlan adatok
Típus: Lakás
Terület: 89 m2
Hálószobák: 4
Építés éve: 20+ éve
Ár: 119 000 000 Ft
Ár/m2: 1.3 M Ft/m2
Emelet: Felső szint
Kilátás az ingatlanból: Város
Leírás
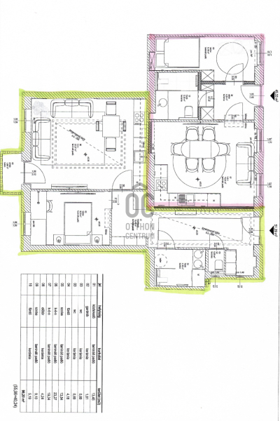
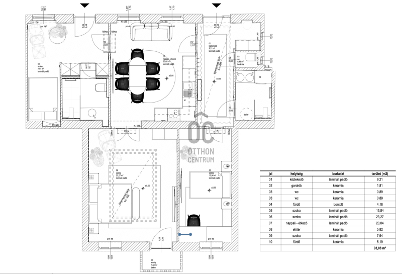
Kiváló állapotú, modern lakás eladó , Budapest egyik kedvelt környékén a Lövölde térnél, Városligeti fasornál. Az ingatlan felmérve 93 nm alapterületű, tulajdoni lapon 89nm-es,
erkélyes nappalival, napos konyha étkezővel két külön hálószobával szobával és 2 fürdőszobával rendelkezik. Az ingatlan fűtése elektromos ingerteres klímás rendszerű, így
...
+ Tovább olvasom
Jellemzők
  • Erkély
Lokáció
1068 Budapest