Nyelv:
Kezdd el!
Eladó
Kiadó
Tulajdonos vagyok
Ingatlanos vagyok
Zoomlla-funkciók
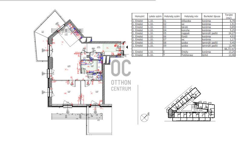
Eladó lakás Budapest XI. 76m2
1119 Budapest
ID: 58120
107 M Ft (1.4 M Ft/m2)
Terület
76 m2
Hálószobák
3
Ingatlan adatok
Típus: Lakás
Terület: 76 m2
Hálószobák: 3
Építés éve: Max. 5 éve
Ár: 107 000 000 Ft
Ár/m2: 1.4 M Ft/m2
Emelet: Felső szint
Kilátás az ingatlanból: Város
Leírás
Projekt bemutatása

Élj át mindent, ami körülvesz!

Az azonnal költözhető lakásokra, Áfa és illetékkedvezmény is érvényesíthető!

Újbuda a főváros egyik legdinamikusabban fejlődő, egyben legnépesebb kerülete, tele élettel. A Etele Park kétséget kizáróan érdekes színfoltja Kelenföld várossziluettjének.

Te is szeretnél Újbuda dinamikusan fejlődő rés
...
+ Tovább olvasom
Lokáció
1119 Budapest