Nyelv:
Kezdd el!
Eladó
Kiadó
Tulajdonos vagyok
Ingatlanos vagyok
Zoomlla-funkciók
Eladó lakás Budapest VI. Nagykörút..
1061 Budapest
ID: 57978
744.2 M Ft (5.2 M Ft/m2)
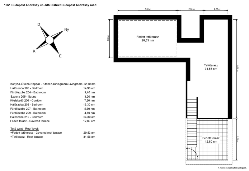
Terület
143 m2
Hálószobák
4
Ingatlan adatok
Típus: Lakás
Terület: 143 m2
Hálószobák: 4
Építés éve: Max. 10 éve
Ár: 744 198 000 Ft
Ár/m2: 5.2 M Ft/m2
Emelet: 1+ emelet
Kilátás az ingatlanból: Város
Leírás
Az Andrássy út egyik legszebb épületének tetőterében került kialakításra ez a luxus lakás. Az épület liftes, 3 emeletes, belsőudvaros eklektikus bérház, pár perc sétára a Deák Ferenc tértől. Világörökség területe, műemlék környezet, de az épület egyedileg nem védett. A tetőtér terveit Magyarország egyik legnépszerűbb építész cége az Archikon Építés...
+ Tovább olvasom
Lokáció
1061 Budapest