Nyelv:
Kezdd el!
Eladó
Kiadó
Tulajdonos vagyok
Ingatlanos vagyok
Zoomlla-funkciók
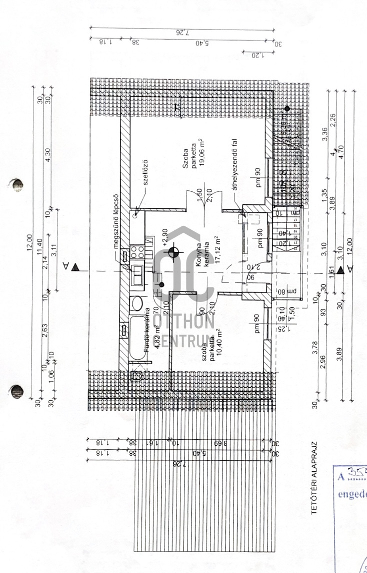
Eladó lakás Dunaújváros 56m2
2400 Dunaújváros
ID: 57950
29.5 M Ft (527 E Ft/m2)
Terület
56 m2
Hálószobák
0
Ingatlan adatok
Típus: Lakás
Terület: 56 m2
Hálószobák: 0
Építés éve: 20+ éve
Ár: 29 500 000 Ft
Ár/m2: 527 E Ft/m2
Emelet: Felső szint
Leírás
Kiemelt ajánlat az Otthon Centrum kínálatában!

Eladóvá vált ez a 3 szobás, összesen 57m2 hasznos alapterülettel rendelkező tetőtéri lakás Újtelepen, Dunaújvárosban.

A jó állapotú, szigetelt iker házban kialakított tetőtéri lakásban egy nappali, konyha-étkező, fürdőszoba-WC lett kialakítva.
Pince szinten található a garázs és tároló amelyek össz
...
+ Tovább olvasom
Lokáció
2400 Dunaújváros