Nyelv:
Kezdd el!
Eladó
Kiadó
Tulajdonos vagyok
Ingatlanos vagyok
Zoomlla-funkciók
Eladó ház Balatoncsicsó 102m2
8272 Balatoncsicsó
ID: 57771
134.9 M Ft (226 E Ft/m2)
Terület
596 m2
Hálószobák
4
Ingatlan adatok
Típus: Ház
Terület: 102 m2
Erkély / Terasz területe: 988 m2
Hálószobák: 4
Építés éve: Max. 20 éve
Ár: 134 900 000 Ft
Ár/m2: 226 E Ft/m2
Emelet: 1+ emelet
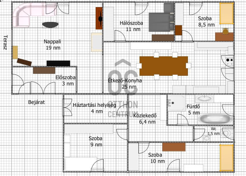
Leírás
Csicsón vált eladóvá ez az egyedi stílusjegyekkel rendelkező 2011-ben épült ingatlan, ami egy 988 nm-es telken fekvő 102 nm-es lakóház. Elosztását, külső megjelenését a jelenlegi tulajdonosok álmodták meg és újították fel teljes körűen, mind az épületet és a hozzá tartozó kertrészt is. Az épület téglából épült, szigetelt.
A házba belépve egy elősz
...
+ Tovább olvasom
Lokáció
8272 Balatoncsicsó