Nyelv:
Kezdd el!
Eladó
Kiadó
Tulajdonos vagyok
Ingatlanos vagyok
Zoomlla-funkciók
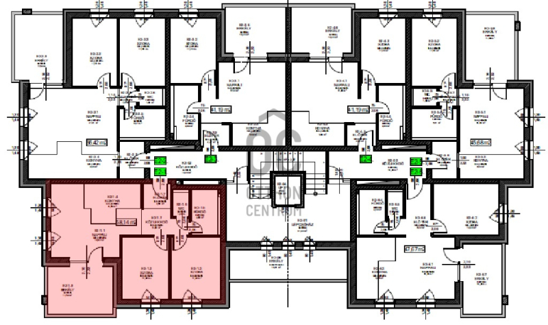
Eladó lakás Kőszeg 58m2
9730 Kőszeg
ID: 57749
54 M Ft (931 E Ft/m2)
Terület
58 m2
Hálószobák
3
Ingatlan adatok
Típus: Lakás
Terület: 58 m2
Hálószobák: 3
Építés éve: Max. 5 éve
Ár: 54 000 000 Ft
Ár/m2: 931 E Ft/m2
Emelet: Felső szint
Kilátás az ingatlanból: Belső udvar
Leírás
Kedves Fiatal Felnőtt! Ha egy új, modern és kényelmes új építésű lakásra vágytok, akkor ne keressetek tovább! Eladásra kínálunk egy 58.14 nm-es, 3 szobás, 1 fürdőszobás lakást Kőszegen. Az amerikai konyhás nappaliban és a hálószobákban integrált szúnyogháló és motoros redőnyök biztosítják a nyugodt és zavartalan alvást. Az erkély mérete 11.59 nm,...
+ Tovább olvasom
Jellemzők
  • Erkély
Lokáció
9730 Kőszeg