Nyelv:
Kezdd el!
Eladó
Kiadó
Tulajdonos vagyok
Ingatlanos vagyok
Zoomlla-funkciók
Eladó lakás Cegléd 86m2
2700 Cegléd
ID: 57738
54 M Ft (628 E Ft/m2)
Terület
86 m2
Hálószobák
5
Ingatlan adatok
Típus: Lakás
Terület: 86 m2
Hálószobák: 5
Építés éve: Max. 5 éve
Ár: 54 000 000 Ft
Ár/m2: 628 E Ft/m2
Emelet: 1+ emelet
Kilátás az ingatlanból: Belső udvar
Leírás
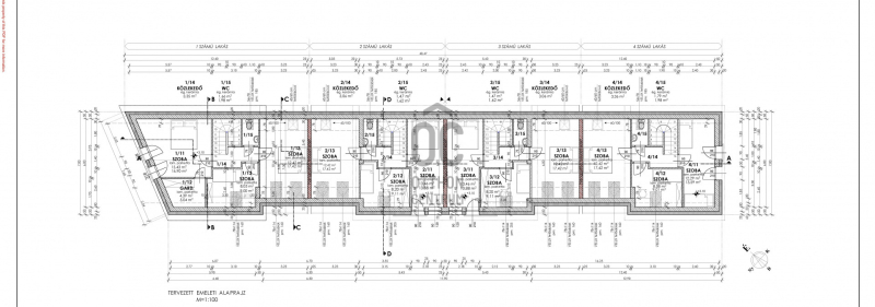
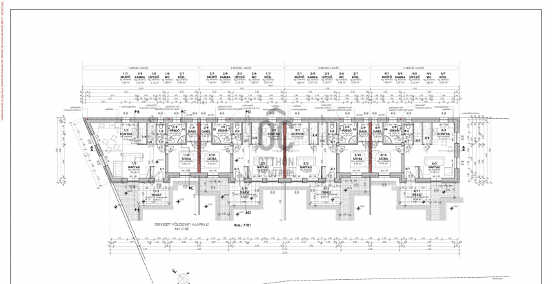
Cegléden új építésű (CSOK plusz-ra alkalmas) lakások megvásárolhatók.

Az ingatlan jellemzői:
- 86 nm
- 2 szintes
- nappali, étkező, konyha, fürdőszoba és 1 hálószoba gardróbbal a földszinten
- 3 hálószoba, wc az emeleten
- jó elosztás
- modern kivitelezés és tervezés
- nappali és fürdőszoba burkolat választható
- tégla építés
- kertkapcsolat

Az
...
+ Tovább olvasom
Lokáció
2700 Cegléd