Nyelv:
Kezdd el!
Eladó
Kiadó
Tulajdonos vagyok
Ingatlanos vagyok
Zoomlla-funkciók
Eladó lakás Budapest VI. Nagykörút..
1066 Budapest
ID: 57278
145 M Ft (1.7 M Ft/m2)
Terület
87 m2
Hálószobák
3
Ingatlan adatok
Típus: Lakás
Terület: 87 m2
Hálószobák: 3
Építés éve: 20+ éve
Ár: 145 000 000 Ft
Ár/m2: 1.7 M Ft/m2
Emelet: Felső szint
Kilátás az ingatlanból: Város
Leírás
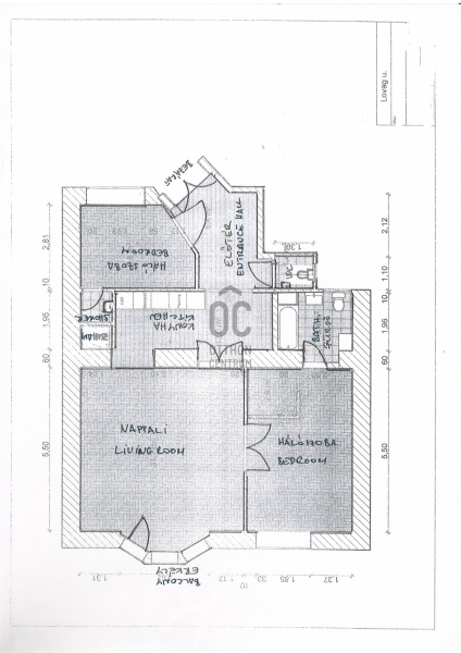
Eladásra kínálok Budapesten a VI. Kerületben egy 87 m2-es, 1. emeleti, 3 szobás, FELÚJÍTOTT, VILÁGOS, ERKÉLYES lakást!

AIRBNB ENGEDÉLYEZETT A HÁZBAN, így kiváló befektetési lehetőség.

FELÚJÍTOTT konyha, nappali amelyből nyílik egy kis erkély, 2 db szoba, 2 db fürdőszoba és egy előszobából áll az ingatlan.

Maximális elégedettséggel jelenleg is
...
+ Tovább olvasom
Jellemzők
  • Erkély
Lokáció
1066 Budapest