Nyelv:
Kezdd el!
Eladó
Kiadó
Tulajdonos vagyok
Ingatlanos vagyok
Zoomlla-funkciók
Eladó lakás Budapest XV. Rákospalot..
1153 Budapest
ID: 57273
89.9 M Ft (908 E Ft/m2)
Terület
99 m2
Hálószobák
6
Ingatlan adatok
Típus: Lakás
Terület: 99 m2
Hálószobák: 6
Építés éve: 20+ éve
Ár: 89 900 000 Ft
Ár/m2: 908 E Ft/m2
Emelet: 1+ emelet
Kilátás az ingatlanból: Park
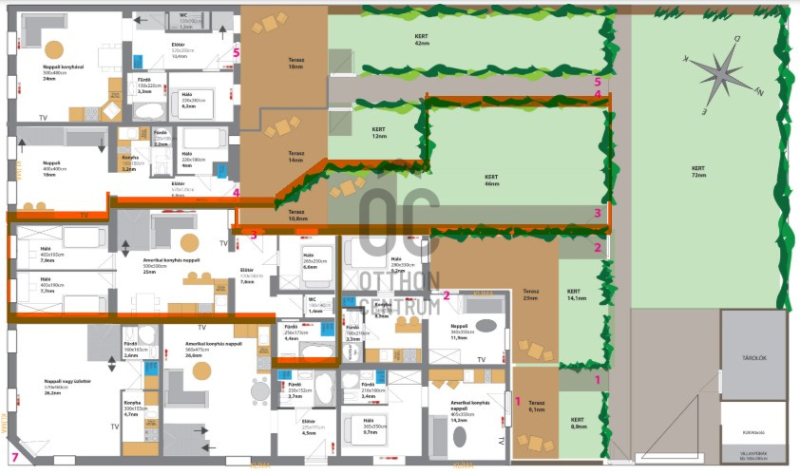
Leírás
RB Sunshine lakópark
- teljeskörűen felújított (vízszigetelés, homlokzati szigetelés, nyílászásók, tető, villamos hálózat, fűtés korszerűsítés), újjáépített társasház
- részben saját kertes, teraszos lakások, részben utcáról nyíló lakás/üzlethelyiség

LAKÁS
- nettó 99 m2, bruttó 157 m2
- nappali + 5 szoba
- belső 2 szintes lakás
- 15 m2 terasz, 50
...
+ Tovább olvasom
Lokáció
1153 Budapest