Nyelv:
Kezdd el!
Eladó
Kiadó
Tulajdonos vagyok
Ingatlanos vagyok
Zoomlla-funkciók
Eladó lakás Érd 130m2
2030 Érd
ID: 57241
99.9 M Ft (768 E Ft/m2)
Terület
130 m2
Hálószobák
4
Ingatlan adatok
Típus: Lakás
Terület: 130 m2
Hálószobák: 4
Építés éve: Max. 5 éve
Ár: 99 900 000 Ft
Ár/m2: 768 E Ft/m2
Emelet: Felső szint
Kilátás az ingatlanból: Belső udvar
Leírás
Eladó!

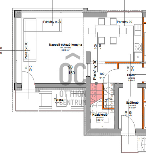
Érdligeten, újszerű, 4 szobás, 130 nm-es, belső két szintes lakás egy 2021-ben épült, három lakásos társasház első emeletén.
Az ingatlanhoz tartozik egy saját tároló, valamint autóbeálló két gépkocsi részére.
Alsó szint:
- előszoba
- amerikai konyhás nappali (teljes gépesítéssel)
- wc
-erkély
Felső szint:
- társalgó/hall
- kádas fürdőszb
...
+ Tovább olvasom
Jellemzők
  • Erkély
Lokáció
2030 Érd